ズーム池尻大橋 成約済み物件 (3259-505)
あなたの理想の暮らしを見つける。KATAROKU
賃料 | ---円 |
---|---|
共益費/管理費 | ---円 |
敷金/礼金 | ---ヶ月/---ヶ月 |
仲介/FR | ---ヶ月/---ヶ月 |
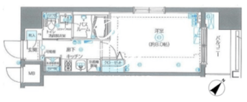
所在階/向き | 5階/北東 |
間取/面積 | 1K/25.50m2 |
入居日 | --- |
情報更新日 | 2025年7月15日 |
ズーム池尻大橋 成約済み物件 (3259-505)
あなたの理想の暮らしを見つける。KATAROKU
賃料 | ---円 |
---|---|
共益費/管理費 | ---円 |
敷金/礼金 | ---ヶ月/---ヶ月 |
仲介/FR | ---ヶ月/---ヶ月 |
所在階/向き | 5階/北東 |
間取/面積 | 1K/25.50m2 |
入居日 | --- |
情報更新日 | 2025年7月15日 |
物件概要
◀︎ 建物詳細を見る物件名 | ズーム池尻大橋 | ||
---|---|---|---|
所在地 | 東京都目黒区大橋1-7-1 | ||
最寄駅 | 東急田園都市線「池尻大橋駅」徒歩7分 京王井の頭線「神泉駅」徒歩13分 東京メトロ日比谷線「中目黒駅」徒歩14分 東急東横線「中目黒駅」徒歩14分 京王井の頭線「駒場東大前駅」徒歩15分 |
||
物件特徴 | デザイナーズ、分譲賃貸、ペット可 | ||
階数構造 | 地上12階 RC造 | ||
総戸数 | 54戸 | 築年月 | 2013年11月 |
賃料 | ---円 | 管理費 | ---円 |
敷金/礼金 | ---ヶ月/---ヶ月 | 仲介手数料 | ---ヶ月 |
フリーレント | ---ヶ月 | 更新料 | ---ヶ月 |
所在階/向き | 5階/北東 | 間取り | 1K |
平米数 | 25.50m2 | 部屋詳細 | 洋室8帖/K2帖 |
契約形態 | 普通賃貸借契約 | 保証会社 | 利用必須 |
ペット飼育 |
可 敷1積増
|
SOHO・事務所 | 不可 |
入居日 | --- |
取引形態 | 媒介 |
問合番号 | 3259-505 | 情報更新日 | 2025年7月15日 |
キャンペーン情報 | キャンペーンの詳細やお見積り等お気軽にお問合せください。 | ||
掲載されている部屋情報以外の空き待ちも承ります。お問合せください。 |
部屋設備
建物詳細を見るアクセス
※建物周辺情報はGoogleMapを使用しており、物件表示位置が実際の位置と多少異なる場合がございます。
募集中のお部屋一覧
チェックボックスでまとめてのお問い合わせや検討中リストへ追加が出来ます。
掲載情報について
- ※随時更新を心がけておりますが、掲載している物件が万が一成約している場合もございますので予めご了承下さいませ。
- ※掲載情報と現況が異なる場合、現況優先となります。
- ※各種キャンペーンは予告なく変更、終了する場合がございます。
- ※駐車場・駐輪場・バイク置場の空き状況についてはお問い合わせ下さい。
- ※ペット飼育やSOHO利用・楽器使用の可否に関しては、建物の管理規約で可能になっていても、お部屋の所有者様によって禁止の場合もございますので御注意下さい。
- 各詳細はメールやお電話にてスタッフまでお気軽にご相談下さい。
おすすめ物件紹介

ウェルスクエア中目黒2
■2025年7月竣工■中目黒駅徒歩7分■総戸数17戸■東京都目黒区上目黒3-20-19 ■地上3階 RC造

ラペルラ自由が丘
■2025年5月竣工■緑が丘駅徒歩10分■総戸数28戸■東京都目黒区緑が丘2-1-9■地上3階 地下1階 RC造■フリーレント1ヶ月

アジールコート池尻大橋
■2025年4月竣工■池尻大橋駅徒歩11分■総戸数41戸■東京都目黒区青葉台3-14-14■地上5階 地下1階 RC造

スタンズ柿の木坂
■2025年2月竣工■都立大学駅徒歩9分■総戸数35戸■東京都目黒区柿の木坂1-21-14■地上3階 地下1階 RC造■フリーレント2ヶ月

ブリリアイスト池尻大橋
■2025年1月竣工■池尻大橋駅徒歩4分■総戸数197戸■東京都目黒区大橋2-17-5■地上7階 地下1階 RC造

ルミークアン目黒
■2024年11月竣工■目黒駅徒歩4分■総戸数15戸■東京都目黒区目黒1-5-11■地上3階 地下2階 RC■フリーレント1ヶ月

JP noie 碑文谷南
■2024年12月竣工■西小山駅徒歩14分■総戸数29戸■東京都目黒区南1-3-16■地上5階 RC造■フリーレント1ヶ月

コンフォリア・リヴ目黒碑文谷
■2024年9月竣工■西小山駅徒歩13分■総戸数31戸■東京都目黒区碑文谷1-10-3■地上5階 RC造

グランパセオ目黒大塚山
■2024年8月竣工■目黒駅徒歩18分■総戸数23戸■東京都目黒区目黒4-15-4■地上3階 地下1階 RC造■フリーレント2ヶ月

ルネサンスコート学芸大学
■2024年8月竣工■学芸大学駅徒歩13分■総戸数12戸■東京都目黒区目黒本町2-11-6■地上4階 RC造■フリーレント1ヶ月

コンフォリア上目黒
■2024年4月竣工■池尻大橋駅徒歩12分■総戸数43戸■東京都目黒区上目黒5-17-23■地上5階 地下1階 RC造

アグレシオテラス恵比寿
■2023年10月竣工■目黒駅徒歩11分■総戸数29戸■東京都目黒区三田2-7-22■地上4階 地下1階 RC造■フリーレント2ヶ月

ザ・パークハビオ北千住
■2025年7月竣工■北千住駅徒歩4分■総戸数147戸■東京都足立区千住3丁目32■地上14階RC造■仲介手数料無料

リーフシティ市川ザ・レジデンス
■2025年5月竣工■市川駅徒歩6分■総戸数235戸■市川市市川南2■地上9階 RC造■仲介手数料無料

ロイヤルパークス品川
■2025年1月竣工■品川駅徒歩11分■総戸数458戸■東京都港区港南3-5-21■地上28階 地下1階 RC造■フリーレント2.5ヶ月

コンフォリア芝浦MOKU
■2024年10月竣工■田町駅徒歩9分■総戸数64戸■東京都港区芝浦4-11-16■地上9階 RC造