キーヌ・ブラン 成約済み物件 (4926-204)
あなたの理想の暮らしを見つける。KATAROKU
賃料 | ---円 |
---|---|
共益費/管理費 | ---円 |
敷金/礼金 | ---ヶ月/---ヶ月 |
仲介/FR | ---ヶ月/---ヶ月 |
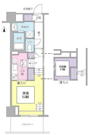
所在階/向き | 2階/南 |
間取/面積 | 1K+ロフト/30.40m2 |
入居日 | --- |
情報更新日 | 2024年9月26日 |
キーヌ・ブラン 成約済み物件 (4926-204)
あなたの理想の暮らしを見つける。KATAROKU
賃料 | ---円 |
---|---|
共益費/管理費 | ---円 |
敷金/礼金 | ---ヶ月/---ヶ月 |
仲介/FR | ---ヶ月/---ヶ月 |
所在階/向き | 2階/南 |
間取/面積 | 1K+ロフト/30.40m2 |
入居日 | --- |
情報更新日 | 2024年9月26日 |
物件概要
◀︎ 建物詳細を見る物件名 | キーヌ・ブラン | ||
---|---|---|---|
所在地 | 東京都品川区東品川1-5-10 | ||
最寄駅 | 京急本線「北品川駅」徒歩5分 東京モノレール「天王洲アイル駅」徒歩10分 りんかい線「天王洲アイル駅」徒歩10分 JR山手線「品川駅」徒歩13分 JR京浜東北線「品川駅」徒歩13分 |
||
物件特徴 | REIT系ブランドマンション、デザイナーズ | ||
階数構造 | 地上9階 地下1階 RC造 | ||
総戸数 | 78戸 | 築年月 | 2016年3月 |
賃料 | ---円 | 管理費 | ---円 |
敷金/礼金 | ---ヶ月/---ヶ月 | 仲介手数料 | ---ヶ月 |
フリーレント | ---ヶ月 | 更新料 | ---ヶ月 |
所在階/向き | 2階/南 | 間取り | 1K+ロフト |
平米数 | 30.40m2 | 部屋詳細 | 洋室6.1帖/K2.9帖/ロフト2.9帖 |
契約形態 | 普通賃貸借契約 | 保証会社 | 利用必須 |
ペット飼育 | 不可 | SOHO・事務所 | 不可 |
入居日 | --- |
取引形態 | 媒介 |
問合番号 | 4926-204 | 情報更新日 | 2024年9月26日 |
キャンペーン情報 | キャンペーンの詳細やお見積り等お気軽にお問合せください。 | ||
掲載されている部屋情報以外の空き待ちも承ります。お問合せください。 |
部屋設備
建物詳細を見るアクセス
※建物周辺情報はGoogleMapを使用しており、物件表示位置が実際の位置と多少異なる場合がございます。
募集中のお部屋一覧
チェックボックスでまとめてのお問い合わせや検討中リストへ追加が出来ます。
現在公開中の部屋情報がありません。
最新の情報はこちら
からお問い合わせください。
掲載情報について
- ※随時更新を心がけておりますが、掲載している物件が万が一成約している場合もございますので予めご了承下さいませ。
- ※掲載情報と現況が異なる場合、現況優先となります。
- ※各種キャンペーンは予告なく変更、終了する場合がございます。
- ※駐車場・駐輪場・バイク置場の空き状況についてはお問い合わせ下さい。
- ※ペット飼育やSOHO利用・楽器使用の可否に関しては、建物の管理規約で可能になっていても、お部屋の所有者様によって禁止の場合もございますので御注意下さい。
- 各詳細はメールやお電話にてスタッフまでお気軽にご相談下さい。
おすすめ物件紹介

ザ・パークハビオ五反田
■2022年11月竣工■五反田駅徒歩2分■総戸数61戸■東京都品川区西五反田2-17-6■地上14階 RC造

アークマーク東大井
■2025年8月竣工■立会川駅徒歩6分■総戸数62戸■東京都品川区東大井3-13-6■地上5階 RC造

シーズンフラッツ大井町
■2025年7月竣工■立会川駅徒歩6分■総戸数69戸■東京都品川区東大井3-16-5■地上14階 RC造■フリーレント1ヶ月

オーガスタレジデンス大森
■2025年8月竣工■大森駅徒歩10分■総戸数84戸■東京都品川区南大井3-1-4■地上9階 RC造

アークマーク南品川
■2025年6月竣工■新馬場駅徒歩4分■総戸数38戸■東京都品川区南品川1-2-22■地上5階 RC造

コンポジット品川戸越
■2025年5月竣工■戸越公園駅徒歩5分■総戸数19戸■東京都品川区豊町4-3-18■地上4階 RC造■フリーレント1ヶ月

デュオフラッツ品川戸越
■2025年7月竣工■戸越駅徒歩4分■総戸数23戸■東京都品川区平塚1-20-8■地上13階 RC造■フリーレント1ヶ月

アーバンコア旗の台
■2025年4月竣工■旗の台駅徒歩5分■総戸数27戸■東京都品川区旗の台2-1-7■地上10階 RC造

パークアクシス品川天王洲アイル
■2025年3月竣工■天王洲アイル駅徒歩7分■総戸数277戸■東京都品川区東品川3-32-27■地上14階 RC造■フリーレント2ヶ月

コンフォリア南品川
■2025年4月竣工■新馬場駅徒歩2分■総戸数51戸■東京都品川区南品川4-2-9■地上16階 RC造■フリーレント1ヶ月

オーキッドレジデンス西大井
■2024年12月竣工■西大井駅徒歩4分■総戸数47戸■東京都品川区西大井2-4-7■地上15階 RC造

グランパセオ大森
■2024年11月竣工■大森海岸駅徒歩3分■総戸数36戸■東京都品川区南大井3-31-17■地上11階 RC造■フリーレント2ヶ月

ザ・パークハビオ北千住
■2025年7月竣工■北千住駅徒歩4分■総戸数147戸■東京都足立区千住3丁目32■地上14階RC造■仲介手数料無料

リーフシティ市川ザ・レジデンス
■2025年5月竣工■市川駅徒歩6分■総戸数235戸■市川市市川南2■地上9階 RC造■仲介手数料無料

ロイヤルパークス品川
■2025年1月竣工■品川駅徒歩11分■総戸数458戸■東京都港区港南3-5-21■地上28階 地下1階 RC造■フリーレント2.5ヶ月

コンフォリア芝浦MOKU
■2024年10月竣工■田町駅徒歩9分■総戸数64戸■東京都港区芝浦4-11-16■地上9階 RC造