ブリリアンクラス高円寺 成約済み物件 (5599-401)
あなたの理想の暮らしを見つける。KATAROKU
| 賃料 | ---円 |
|---|---|
| 共益費/管理費 | ---円 |
| 敷金/礼金 | ---ヶ月/---ヶ月 |
| 仲介/FR | ---ヶ月/---ヶ月 |
| 所在階/向き | 4階/南 |
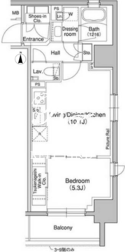
| 間取/面積 | 1LDK+SIC+WIC/40.63m2 |
| 入居日 | --- |
| 情報更新日 | 2025年6月12日 |
ブリリアンクラス高円寺 成約済み物件 (5599-401)
あなたの理想の暮らしを見つける。KATAROKU
| 賃料 | ---円 |
|---|---|
| 共益費/管理費 | ---円 |
| 敷金/礼金 | ---ヶ月/---ヶ月 |
| 仲介/FR | ---ヶ月/---ヶ月 |
| 所在階/向き | 4階/南 |
| 間取/面積 | 1LDK+SIC+WIC/40.63m2 |
| 入居日 | --- |
| 情報更新日 | 2025年6月12日 |
物件概要
◀︎ 建物詳細を見る| 物件名 | ブリリアンクラス高円寺 | ||
|---|---|---|---|
| 所在地 | 東京都杉並区高円寺北2-19-2 | ||
| 最寄駅 | JR中央線(快速)「高円寺駅」徒歩2分 JR中央・総武線「高円寺駅」徒歩2分 東京メトロ丸ノ内線「新高円寺駅」徒歩16分 JR中央線(快速)「中野駅」徒歩21分 東京メトロ丸ノ内線「東高円寺駅」徒歩21分 |
||
| 物件特徴 | REIT系ブランドマンション、デザイナーズ、ペット可 | ||
| 階数構造 | 地上13階 RC造 | ||
| 総戸数 | 85戸 | 築年月 | 2023年8月 |
| 賃料 | ---円 | 管理費 | ---円 |
| 敷金/礼金 | ---ヶ月/---ヶ月 | 仲介手数料 | ---ヶ月 |
| フリーレント | ---ヶ月 | 更新料 | ---ヶ月 |
| 所在階/向き | 4階/南 | 間取り | 1LDK+SIC+WIC |
| 平米数 | 40.63m2 | 部屋詳細 | LDK10.1帖/洋室5.3帖 |
| 契約形態 | 普通賃貸借契約 | 保証会社 | 利用必須 |
| ペット飼育 |
可 敷1積増
|
SOHO・事務所 | 不可 |
| 入居日 | --- |
取引形態 | 媒介 |
| 問合番号 | 5599-401 | 情報更新日 | 2025年6月12日 |
| キャンペーン情報 | キャンペーンの詳細やお見積り等お気軽にお問合せください。 | ||
| 掲載されている部屋情報以外の空き待ちも承ります。お問合せください。 | |||
部屋設備
建物詳細を見るアクセス
※建物周辺情報はGoogleMapを使用しており、物件表示位置が実際の位置と多少異なる場合がございます。
募集中のお部屋一覧
チェックボックスでまとめてのお問い合わせや検討中リストへ追加が出来ます。
掲載情報について
- ※随時更新を心がけておりますが、掲載している物件が万が一成約している場合もございますので予めご了承下さいませ。
- ※掲載情報と現況が異なる場合、現況優先となります。
- ※各種キャンペーンは予告なく変更、終了する場合がございます。
- ※駐車場・駐輪場・バイク置場の空き状況についてはお問い合わせ下さい。
- ※ペット飼育やSOHO利用・楽器使用の可否に関しては、建物の管理規約で可能になっていても、お部屋の所有者様によって禁止の場合もございますので御注意下さい。
- 各詳細はメールやお電話にてスタッフまでお気軽にご相談下さい。
おすすめ物件紹介
テラ蚕糸の森
■2026年2月竣工■東高円寺駅徒歩1分■総戸数99戸■東京都杉並区和田3-56-11■地上11階 RC造■仲介手数料半額
イプセ東高円寺
■2025年3月竣工■東高円寺駅徒歩7分■総戸数38戸■東京都杉並区和田1-71-18■地上5階 RC造■フリーレント2ヶ月
FAM ogikubo
■2024年12月竣工■荻窪駅徒歩8分■総戸数20戸■東京都杉並区清水1-15-4■地上5階 RC造
アジールコート方南町テラス
■2025年1月竣工■方南町駅徒歩12分■総戸数36戸■東京都杉並区堀ノ内2-18-18■地上5階 RC造
ウェルスクエア中野富士見町
■2024年12月竣工■中野富士見町駅徒歩5分■総戸数33戸■東京都杉並区和田1-6-1■地上5階 RC造
アーバンパーク方南町2
■2024年8月竣工■方南町駅徒歩7分■総戸数44戸■東京都杉並区堀ノ内2-11-26■地上5階 RC造
パークグレイス荻窪
■2025年1月竣工■荻窪駅徒歩8分■総戸数40戸■東京都杉並区荻窪2-43-25■地上3階 RC造
テラス杉並方南町
■2024年10月竣工■方南町駅徒歩6分■総戸数85戸■東京都杉並区堀ノ内2-11-6■地上5階 RC造■フリーレント1ヶ月
ザ・パークハビオ日本橋茅場町
■2026年2月竣工■茅場町駅徒歩3分■総戸数81戸■東京都中央区日本橋茅場町2-2-5■地上10階 RC造■仲介手数料無料・礼金0
麻布台ヒルズレジデンスB棟
■2025年8月竣工■六本木一丁目駅徒歩3分■総戸数970戸■東京都港区麻布台1-1000-2■地上64階地下5階 RC造■森ビルの一代プロジェクトによる都市再開発
ザ・パークハビオ北千住
■2025年7月竣工■北千住駅徒歩4分■総戸数147戸■東京都足立区千住3-32■地上14階RC造■仲介手数料無料
パークアクシス西大島コンフォートスクエア
■2025年10月竣工■西大島駅徒歩4分■総戸数446戸■東京都江東区大島4-6-17■地上14階 RC造■仲介手数料無料

