レジディアタワー上池袋 成約済み物件 (1387-TW-822)
あなたの理想の暮らしを見つける。KATAROKU
賃料 | ---円 |
---|---|
共益費/管理費 | ---円 |
敷金/礼金 | ---ヶ月/---ヶ月 |
仲介/FR | ---ヶ月/---ヶ月 |
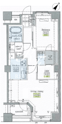
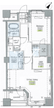
所在階/向き | 8階/南東 |
間取/面積 | 1SLDK+WIC/54.62m2 |
入居日 | --- |
情報更新日 | 2025年1月15日 |
レジディアタワー上池袋 成約済み物件 (1387-TW-822)
あなたの理想の暮らしを見つける。KATAROKU
賃料 | ---円 |
---|---|
共益費/管理費 | ---円 |
敷金/礼金 | ---ヶ月/---ヶ月 |
仲介/FR | ---ヶ月/---ヶ月 |
所在階/向き | 8階/南東 |
間取/面積 | 1SLDK+WIC/54.62m2 |
入居日 | --- |
情報更新日 | 2025年1月15日 |
物件概要
◀︎ 建物詳細を見る物件名 | レジディアタワー上池袋 | ||
---|---|---|---|
所在地 | 東京都豊島区上池袋1-37-22 | ||
最寄駅 | JR山手線「大塚駅」徒歩10分 東武東上線「北池袋駅」徒歩10分 都電荒川線「巣鴨新田駅」徒歩11分 都営三田線「西巣鴨駅」徒歩12分 JR山手線「池袋駅」徒歩15分 |
||
物件特徴 | REIT系ブランドマンション、タワーマンション、デザイナーズ、ペット可 | ||
階数構造 | 地上22階 RC造 | ||
総戸数 | 399戸 | 築年月 | 2009年5月 |
賃料 | ---円 | 管理費 | ---円 |
敷金/礼金 | ---ヶ月/---ヶ月 | 仲介手数料 | ---ヶ月 |
フリーレント | ---ヶ月 | 更新料 | ---ヶ月 |
所在階/向き | 8階/南東 | 間取り | 1SLDK+WIC |
平米数 | 54.62m2 | 部屋詳細 | LDK15.5帖/洋室6.6帖/DEN2.1帖 |
契約形態 | 定期借家契約 3年 | 保証会社 | 利用必須 |
ペット飼育 |
可 敷1積増
|
SOHO・事務所 | 不可 |
入居日 | --- |
取引形態 | 媒介 |
問合番号 | 1387-TW-822 | 情報更新日 | 2025年1月15日 |
キャンペーン情報 | キャンペーンの詳細やお見積り等お気軽にお問合せください。 | ||
掲載されている部屋情報以外の空き待ちも承ります。お問合せください。 |
部屋設備
建物詳細を見るアクセス
※建物周辺情報はGoogleMapを使用しており、物件表示位置が実際の位置と多少異なる場合がございます。
募集中のお部屋一覧
チェックボックスでまとめてのお問い合わせや検討中リストへ追加が出来ます。
掲載情報について
- ※随時更新を心がけておりますが、掲載している物件が万が一成約している場合もございますので予めご了承下さいませ。
- ※掲載情報と現況が異なる場合、現況優先となります。
- ※各種キャンペーンは予告なく変更、終了する場合がございます。
- ※駐車場・駐輪場・バイク置場の空き状況についてはお問い合わせ下さい。
- ※ペット飼育やSOHO利用・楽器使用の可否に関しては、建物の管理規約で可能になっていても、お部屋の所有者様によって禁止の場合もございますので御注意下さい。
- 各詳細はメールやお電話にてスタッフまでお気軽にご相談下さい。
おすすめ物件紹介

コートレジデンス南大塚
■2025年9月竣工■大塚駅徒歩5分■総戸数103戸■東京都豊島区南大塚2-39-5■地上14階 RC造

グランパセオ池袋
■2025年4月竣工■雑司ヶ谷駅徒歩2分■総戸数14戸■東京都豊島区南池袋2-3-2■地上5階 RC造■フリーレント2ヶ月

ブランシエスタ雑司が谷
■2025年3月竣工■雑司が谷駅徒歩2分■総戸数68戸■東京都豊島区雑司が谷3-3-4■地上14階 地下1階 RC造■フリーレント1ヶ月

シーズンフラッツ新大塚
■2025年2月竣工■新大塚駅徒歩7分■総戸数60戸■東京都豊島区南大塚2-2-19■地上8階 RC造■フリーレント2ヶ月

グランパセオ大塚
■2025年1月竣工■巣鴨新田駅徒歩4分■総戸数38戸■東京都豊島区西巣鴨2-1-3■地上4階 RC造■フリーレント2ヶ月

ロイジェント駒込六義園
■2025年2月竣工■駒込駅徒歩2分■総戸数40戸■東京都豊島区駒込1-3-17■地上15階 RC造■フリーレント1ヶ月

ACPレジデンス西巣鴨
■2024年11月竣工■西巣鴨駅徒歩3分■総戸数78戸■東京都豊島区西巣鴨3-15-15■地上11階 RC造

アーバネックス駒込
■2025年1月竣工■駒込駅徒歩4分■総戸数52戸■東京都豊島区駒込2-7-11■地上14階 RC造

リビオメゾン東池袋
■2024年11月竣工■池袋駅徒歩8分■総戸数49戸■東京都豊島区東池袋3-13-3
■地上12階 RC造

トラディス池袋本町
■2024年6月竣工■下板橋駅徒歩8分■総戸数32戸■東京都豊島区池袋本町2-35-12■地上5階 地下1階 RC造■フリーレント1ヶ月

トラディス西池袋
■2024年5月竣工■椎名町駅徒歩4分■総戸数21戸■東京都豊島区西池袋4-35-10地上4階 RC造■フリーレント2ヶ月

グローリオシェルト池袋2
■2024年5月竣工■椎名町駅徒歩9分■総戸数34戸■東京都豊島区目白4-36-6■地上4階 RC造■フリーレント1ヶ月

ザ・パークハビオ北千住
■2025年7月竣工■北千住駅徒歩4分■総戸数147戸■東京都足立区千住3丁目32■地上14階RC造■仲介手数料無料

リーフシティ市川ザ・レジデンス
■2025年5月竣工■市川駅徒歩6分■総戸数235戸■市川市市川南2■地上9階 RC造■仲介手数料無料

ロイヤルパークス品川
■2025年1月竣工■品川駅徒歩11分■総戸数458戸■東京都港区港南3-5-21■地上28階 地下1階 RC造■フリーレント2.5ヶ月

コンフォリア芝浦MOKU
■2024年10月竣工■田町駅徒歩9分■総戸数64戸■東京都港区芝浦4-11-16■地上9階 RC造