サンウッド東日本橋フラッツ 成約済み物件 (1912-201)
あなたの理想の暮らしを見つける。KATAROKU
賃料 | ---円 |
---|---|
共益費/管理費 | ---円 |
敷金/礼金 | ---ヶ月/---ヶ月 |
仲介/FR | ---ヶ月/---ヶ月 |
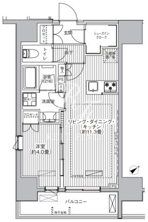
所在階/向き | 2階/南東 |
間取/面積 | 1LDK+SIC/40.18m2 |
入居日 | --- |
情報更新日 | 2023年6月22日 |
サンウッド東日本橋フラッツ 成約済み物件 (1912-201)
あなたの理想の暮らしを見つける。KATAROKU
賃料 | ---円 |
---|---|
共益費/管理費 | ---円 |
敷金/礼金 | ---ヶ月/---ヶ月 |
仲介/FR | ---ヶ月/---ヶ月 |
所在階/向き | 2階/南東 |
間取/面積 | 1LDK+SIC/40.18m2 |
入居日 | --- |
情報更新日 | 2023年6月22日 |
物件概要
◀︎ 建物詳細を見る物件名 | サンウッド東日本橋フラッツ | ||
---|---|---|---|
所在地 | 東京都中央区日本橋横山町10-11 | ||
最寄駅 | JR総武本線「馬喰町駅」徒歩1分 都営浅草線「東日本橋駅」徒歩3分 都営新宿線「馬喰横山駅」徒歩3分 都営浅草線「浅草橋駅」徒歩4分 JR中央・総武線「浅草橋駅」徒歩5分 |
||
物件特徴 | デザイナーズ、分譲賃貸、ペット可 | ||
階数構造 | 地上14階 地下1階 RC造 | ||
総戸数 | 65戸 | 築年月 | 2017年2月 |
賃料 | ---円 | 管理費 | ---円 |
敷金/礼金 | ---ヶ月/---ヶ月 | 仲介手数料 | ---ヶ月 |
フリーレント | ---ヶ月 | 更新料 | ---ヶ月 |
所在階/向き | 2階/南東 | 間取り | 1LDK+SIC |
平米数 | 40.18m2 | 部屋詳細 | LDK11.3帖/洋室4帖 |
契約形態 | 普通賃貸借契約 | 保証会社 | 利用必須 |
ペット飼育 | 不可 | SOHO・事務所 | 不可 |
入居日 | --- |
取引形態 | 媒介 |
問合番号 | 1912-201 | 情報更新日 | 2023年6月22日 |
キャンペーン情報 | キャンペーンの詳細やお見積り等お気軽にお問合せください。 | ||
掲載されている部屋情報以外の空き待ちも承ります。お問合せください。 |
部屋設備
建物詳細を見るアクセス
※建物周辺情報はGoogleMapを使用しており、物件表示位置が実際の位置と多少異なる場合がございます。
募集中のお部屋一覧
チェックボックスでまとめてのお問い合わせや検討中リストへ追加が出来ます。
現在公開中の部屋情報がありません。
最新の情報はこちら
からお問い合わせください。
掲載情報について
- ※随時更新を心がけておりますが、掲載している物件が万が一成約している場合もございますので予めご了承下さいませ。
- ※掲載情報と現況が異なる場合、現況優先となります。
- ※各種キャンペーンは予告なく変更、終了する場合がございます。
- ※駐車場・駐輪場・バイク置場の空き状況についてはお問い合わせ下さい。
- ※ペット飼育やSOHO利用・楽器使用の可否に関しては、建物の管理規約で可能になっていても、お部屋の所有者様によって禁止の場合もございますので御注意下さい。
- 各詳細はメールやお電話にてスタッフまでお気軽にご相談下さい。
おすすめ物件紹介

トラッド日本橋人形町
■2025年7月竣工■人形町駅徒歩2分■総戸数26戸■東京都中央区日本橋人形町1-17-10■地上12階 RC造

デュオフラッツ日本橋水天宮
■2025年8月竣工■水天宮前駅徒歩2分■総戸数34戸■東京都中央区日本橋蛎殻町1-28-3■地上14階 RC造■フリーレント1ヶ月

ザ・パークハビオ日本橋三越前
■2025年3月竣工■人形町駅徒歩5分■総戸数54戸■東京都中央区日本橋堀留町1-1-5■地上10階 RC造■フリーレント1ヶ月

アーバネックス日本橋馬喰町2
■2025年3月竣工■馬喰町駅徒歩1分■総戸数23戸■東京都中央区日本橋馬喰町1-4-3■地上12階 RC造■フリーレント1ヶ月

プライムガーデン銀座八丁堀
■2025年3月竣工■八丁堀駅徒歩4分■総戸数72戸■東京都中央区入船1-4-5■地上12階 RC造■フリーレント1ヶ月

グランパセオ銀座築地
■2024年11月竣工■築地市場駅徒歩5分■総戸数84戸■東京都中央区築地6-23-2■地上12階 RC造■フリーレント2ヶ月

パークアクシス東日本橋
■2024年12月竣工■馬喰横山駅徒歩2分■総戸数144戸■東京都中央区東日本橋3-4-17■地上12階 RC造■フリーレント1ヶ月

イプセ日本橋
■2024年12月竣工■水天宮前駅徒歩3分■総戸数26戸■東京都中央区日本橋蛎殻町1-6-5■地上14階 RC造

ブリックレジデンス築地明石町
■2024年10月竣工■築地駅徒歩6分■総戸数51戸■東京都中央区明石町5-20■地上10階 RC造

オレア日本橋浜町
■2024年9月竣工■浜町駅徒歩4分■総戸数27戸■東京都中央区日本橋浜町1-11-10■地上10階 RC造

ベルファース八丁堀ウエスト
■2024年7月竣工■八丁堀駅徒歩4分■総戸数97戸■東京都中央区八丁堀3-8-1■地上12階 RC造■フリーレント1ヶ月

ミリアレジデンス日本橋人形町
■2024年3月竣工■水天宮前駅徒歩3分■総戸数96戸■東京中央区日本橋人形町2-35-15■地上13階 地下1階 RC造■フリーレント1ヶ月

ザ・パークハビオ北千住
■2025年7月竣工■北千住駅徒歩4分■総戸数147戸■東京都足立区千住3丁目32■地上14階RC造■仲介手数料無料

リーフシティ市川ザ・レジデンス
■2025年5月竣工■市川駅徒歩6分■総戸数235戸■市川市市川南2■地上9階 RC造■仲介手数料無料

ロイヤルパークス品川
■2025年1月竣工■品川駅徒歩11分■総戸数458戸■東京都港区港南3-5-21■地上28階 地下1階 RC造■フリーレント2.5ヶ月

コンフォリア芝浦MOKU
■2024年10月竣工■田町駅徒歩9分■総戸数64戸■東京都港区芝浦4-11-16■地上9階 RC造