ピアース浅草 成約済み物件 (1919-1102)
あなたの理想の暮らしを見つける。KATAROKU
| 賃料 | ---円 |
|---|---|
| 共益費/管理費 | ---円 |
| 敷金/礼金 | ---ヶ月/---ヶ月 |
| 仲介/FR | ---ヶ月/---ヶ月 |
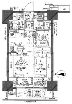
| 所在階/向き | 11階/西 |
| 間取/面積 | 1LDK+SIC/32.03m2 |
| 入居日 | --- |
| 情報更新日 | 2023年4月19日 |
ピアース浅草 成約済み物件 (1919-1102)
あなたの理想の暮らしを見つける。KATAROKU
| 賃料 | ---円 |
|---|---|
| 共益費/管理費 | ---円 |
| 敷金/礼金 | ---ヶ月/---ヶ月 |
| 仲介/FR | ---ヶ月/---ヶ月 |
| 所在階/向き | 11階/西 |
| 間取/面積 | 1LDK+SIC/32.03m2 |
| 入居日 | --- |
| 情報更新日 | 2023年4月19日 |
物件概要
◀︎ 建物詳細を見る| 物件名 | ピアース浅草 | ||
|---|---|---|---|
| 所在地 | 東京都台東区浅草3-27-4 | ||
| 最寄駅 | 東武伊勢崎線「浅草駅」徒歩7分 東京メトロ銀座線「浅草駅」徒歩7分 都営浅草線「浅草駅」徒歩10分 つくばエクスプレス「浅草駅」徒歩10分 東京メトロ銀座線「田原町駅」徒歩16分 |
||
| 物件特徴 | デザイナーズ、分譲賃貸 | ||
| 階数構造 | 地上13階 RC造 | ||
| 総戸数 | 47戸 | 築年月 | 2021年2月 |
| 賃料 | ---円 | 管理費 | ---円 |
| 敷金/礼金 | ---ヶ月/---ヶ月 | 仲介手数料 | ---ヶ月 |
| フリーレント | ---ヶ月 | 更新料 | ---ヶ月 |
| 所在階/向き | 11階/西 | 間取り | 1LDK+SIC |
| 平米数 | 32.03m2 | 部屋詳細 | LDK8.6帖/洋室3.7帖 |
| 契約形態 | 普通賃貸借契約 | 保証会社 | 利用必須 |
| ペット飼育 | 不可 | SOHO・事務所 | 不可 |
| 入居日 | --- |
取引形態 | 媒介 |
| 問合番号 | 1919-1102 | 情報更新日 | 2023年4月19日 |
| キャンペーン情報 | キャンペーンの詳細やお見積り等お気軽にお問合せください。 | ||
| 掲載されている部屋情報以外の空き待ちも承ります。お問合せください。 | |||
部屋設備
建物詳細を見るアクセス
※建物周辺情報はGoogleMapを使用しており、物件表示位置が実際の位置と多少異なる場合がございます。
募集中のお部屋一覧
チェックボックスでまとめてのお問い合わせや検討中リストへ追加が出来ます。
現在公開中の部屋情報がありません。
最新の情報はこちら
からお問い合わせください。
掲載情報について
- ※随時更新を心がけておりますが、掲載している物件が万が一成約している場合もございますので予めご了承下さいませ。
- ※掲載情報と現況が異なる場合、現況優先となります。
- ※各種キャンペーンは予告なく変更、終了する場合がございます。
- ※駐車場・駐輪場・バイク置場の空き状況についてはお問い合わせ下さい。
- ※ペット飼育やSOHO利用・楽器使用の可否に関しては、建物の管理規約で可能になっていても、お部屋の所有者様によって禁止の場合もございますので御注意下さい。
- 各詳細はメールやお電話にてスタッフまでお気軽にご相談下さい。
おすすめ物件紹介
シーズンフラッツ浅草六丁目
■2025年12月竣工■浅草駅徒歩7分■総戸数48戸■東京都台東区浅草6-1-1■地上13階 RC造■礼金0・仲介手数料無料
ブリリアイスト浅草
■2025年12月竣工■浅草駅徒歩1分■総戸数68戸■東京都台東区西浅草2-27-12■地上15階 RC造■礼金0・仲介手数料無料・ワークラウンジ完備
nido三ノ輪
■2025年8月竣工■三ノ輪駅徒歩5分■総戸数29戸■東京都台東区三ノ輪1-14-5■地上11階 RC造
ルフォンプログレ田原町
■2025年8月竣工■田原町駅徒歩5分■総戸数74戸■東京都台東区元浅草3-21-11■地上15階 RC造
グランパセオ蔵前2
■2025年6月竣工■蔵前駅徒歩1分■総戸数26戸■東京都台東区蔵前3-20-11■地上14階 RC造■フリーレント2ヶ月
デュオフラッツ浅草蔵前
■2025年8月竣工■蔵前駅徒歩3分■総戸数25戸■東京都台東区蔵前4-31-12■地上13階 RC造
アーバネックス新御徒町駅前
■2025年7月竣工■新御徒町駅徒歩1分■総戸数27戸■東京都台東区台東4-23-4■地上11階 RC造■フリーレント1ヶ月
オープンブルーム入谷イースト
■2025年2月竣工■入谷駅徒歩7分■総戸数28戸■東京都台東区入谷2-6-7■地上15階 RC造■フリーレント1ヶ月
クラリティア浅草橋
■2025年3月竣工■浅草橋駅徒歩4分■総戸数42戸■東京都台東区浅草橋4-19-4■地上15階 RC造■フリーレント1ヶ月
ブリリアイスト新御徒町
■2025年2月竣工■新御徒町駅徒歩3分■総戸数42戸■東京都台東区元浅草3-17-7■地上14階 RC造■フリーレント2ヶ月
ブランシエスタ浅草雷門
■2025年2月竣工■田原町駅徒歩4分■総戸数49戸■東京都台東区雷門1-14-1■地上11階 RC造■フリーレント1ヶ月
アーバネックス北上野
■2025年3月竣工■入谷駅徒歩5分■総戸数45戸■東京都台東区北上野2-13-13■地上13階 RC造■フリーレント1ヶ月
ザ・パークハビオ日本橋茅場町
■2026年2月竣工■茅場町駅徒歩3分■総戸数81戸■東京都中央区日本橋茅場町2-2-5■地上10階 RC造■仲介手数料無料・礼金0
麻布台ヒルズレジデンスB棟
■2025年8月竣工■六本木一丁目駅徒歩3分■総戸数970戸■東京都港区麻布台1-1000-2■地上64階地下5階 RC造■森ビルの一代プロジェクトによる都市再開発
パークアクシス西大島コンフォートスクエア
■2025年10月竣工■西大島駅徒歩4分■総戸数446戸■東京都江東区大島4-6-17■地上14階 RC造■仲介手数料無料
リーフシティ市川ザ・レジデンス
■2025年5月竣工■市川駅徒歩6分■総戸数235戸■市川市市川南2-9-12■地上9階 RC造■仲介手数料無料

