ズーム渋谷笹塚 成約済み物件 (2001-203)
あなたの理想の暮らしを見つける。KATAROKU
賃料 | ---円 |
---|---|
共益費/管理費 | ---円 |
敷金/礼金 | ---ヶ月/---ヶ月 |
仲介/FR | ---ヶ月/---ヶ月 |
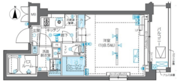
所在階/向き | 2階/東 |
間取/面積 | 1K+WIC/28.72m2 |
入居日 | --- |
情報更新日 | 2024年9月9日 |
ズーム渋谷笹塚 成約済み物件 (2001-203)
あなたの理想の暮らしを見つける。KATAROKU
賃料 | ---円 |
---|---|
共益費/管理費 | ---円 |
敷金/礼金 | ---ヶ月/---ヶ月 |
仲介/FR | ---ヶ月/---ヶ月 |
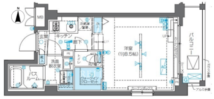
所在階/向き | 2階/東 |
間取/面積 | 1K+WIC/28.72m2 |
入居日 | --- |
情報更新日 | 2024年9月9日 |
物件概要
◀︎ 建物詳細を見る物件名 | ズーム渋谷笹塚 | ||
---|---|---|---|
所在地 | 東京都渋谷区幡ヶ谷3-37-16 | ||
最寄駅 | 京王線「笹塚駅」徒歩9分 京王新線「幡ヶ谷駅」徒歩10分 小田急線「東北沢駅」徒歩20分 東京メトロ丸ノ内線「方南町駅」徒歩20分 東京メトロ千代田線「代々木上原駅」徒歩22分 |
||
物件特徴 | デザイナーズ、分譲賃貸、ペット可 | ||
階数構造 | 地上14階 RC造 | ||
総戸数 | 31戸 | 築年月 | 2018年3月 |
賃料 | ---円 | 管理費 | ---円 |
敷金/礼金 | ---ヶ月/---ヶ月 | 仲介手数料 | ---ヶ月 |
フリーレント | ---ヶ月 | 更新料 | ---ヶ月 |
所在階/向き | 2階/東 | 間取り | 1K+WIC |
平米数 | 28.72m2 | 部屋詳細 | 洋室8.5帖/K2帖 |
契約形態 | 普通賃貸借契約 | 保証会社 | 利用必須 |
ペット飼育 |
可 敷1積増
|
SOHO・事務所 | 不可 |
入居日 | --- |
取引形態 | 媒介 |
問合番号 | 2001-203 | 情報更新日 | 2024年9月9日 |
キャンペーン情報 | キャンペーンの詳細やお見積り等お気軽にお問合せください。 | ||
掲載されている部屋情報以外の空き待ちも承ります。お問合せください。 |
部屋設備
建物詳細を見るアクセス
※建物周辺情報はGoogleMapを使用しており、物件表示位置が実際の位置と多少異なる場合がございます。
募集中のお部屋一覧
チェックボックスでまとめてのお問い合わせや検討中リストへ追加が出来ます。
現在公開中の部屋情報がありません。
最新の情報はこちら
からお問い合わせください。
掲載情報について
- ※随時更新を心がけておりますが、掲載している物件が万が一成約している場合もございますので予めご了承下さいませ。
- ※掲載情報と現況が異なる場合、現況優先となります。
- ※各種キャンペーンは予告なく変更、終了する場合がございます。
- ※駐車場・駐輪場・バイク置場の空き状況についてはお問い合わせ下さい。
- ※ペット飼育やSOHO利用・楽器使用の可否に関しては、建物の管理規約で可能になっていても、お部屋の所有者様によって禁止の場合もございますので御注意下さい。
- 各詳細はメールやお電話にてスタッフまでお気軽にご相談下さい。
おすすめ物件紹介

アーバンパークグラン代官山
■2023年1月竣工■代官山駅徒歩10分■総戸数28戸■東京都渋谷区鉢山町13-18■地上5階 地下1階 RC造

アイフラット渋谷西原
■2025年8月竣工■幡ヶ谷駅徒歩2分■総戸数28戸■東京都渋谷区西原2-31-3■地上6階 RC造■礼金0・仲介手数料無料

コートモデリア広尾Tokyo
■2025年7月竣工■広尾駅徒歩7分■総戸数20戸■東京都渋谷区恵比寿2-20-2■地上5階 地下1階 RC造

グランパセオ広尾
■2025年2月竣工■恵比寿駅徒歩11分■総戸数50戸■東京都渋谷区広尾3-12-39■地上13階 RC造■フリーレント2ヶ月

アイフラット代々木上原
■2025年2月竣工■代々木上原駅徒歩3分■総戸数30戸■東京都渋谷区上原3-44-8■地上8階 RC造■フリーレント1ヶ月

プライムガーデン恵比寿南
■2024年11月竣工■代官山駅徒歩5分■総戸数44戸■東京都渋谷区恵比寿南3-4-13■地上13階 RC造

レーヴシティ千駄ヶ谷
■2024年9月竣工■北参道駅徒歩8分■総戸数31戸■東京都渋谷区千駄ヶ谷2-28-1■地上13階 地下1階 RC造

オープンブルーム渋谷本町
■2024年5月竣工■西新宿五丁目駅10分■総戸数39戸■東京都渋谷区本町5-14-12■地上5階 RC造

エルファーロ広尾
■2024年3月竣工■恵比寿駅徒歩8分■総戸数15戸■東京都渋谷区広尾1-7-20■地上3階 RC造

オーキッドレジデンス渋谷富ヶ谷
■2024年2月竣工■代々木八幡駅徒歩9分■総戸数99戸■東京都渋谷区富ヶ谷2-14-2■地上13階 RC造

クレストコート渋谷笹塚
■2024年3月竣工■笹塚駅徒歩6分■総戸数22戸■東京都渋谷区笹塚3-19-1■地上6階 RC造■フリーレント1ヶ月

参宮橋ビューアパートメント
■2024年1月竣工■初台駅徒歩6分■総戸数45戸■東京都渋谷区代々木4-35-18■地上5階 RC造■フリーレント1ヶ月

ザ・パークハビオ北千住
■2025年7月竣工■北千住駅徒歩4分■総戸数147戸■東京都足立区千住3丁目32■地上14階RC造■仲介手数料無料

リーフシティ市川ザ・レジデンス
■2025年5月竣工■市川駅徒歩6分■総戸数235戸■市川市市川南2■地上9階 RC造■仲介手数料無料

ロイヤルパークス品川
■2025年1月竣工■品川駅徒歩11分■総戸数458戸■東京都港区港南3-5-21■地上28階 地下1階 RC造■フリーレント2.5ヶ月

コンフォリア芝浦MOKU
■2024年10月竣工■田町駅徒歩9分■総戸数64戸■東京都港区芝浦4-11-16■地上9階 RC造