グランドコンシェルジュ蔵前 成約済み物件 (2579-1003)
あなたの理想の暮らしを見つける。KATAROKU
賃料 | ---円 |
---|---|
共益費/管理費 | ---円 |
敷金/礼金 | ---ヶ月/---ヶ月 |
仲介/FR | ---ヶ月/---ヶ月 |
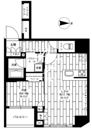
所在階/向き | 10階/東 |
間取/面積 | 1LDK/43.21m2 |
入居日 | --- |
情報更新日 | 2024年5月17日 |
グランドコンシェルジュ蔵前 成約済み物件 (2579-1003)
あなたの理想の暮らしを見つける。KATAROKU
賃料 | ---円 |
---|---|
共益費/管理費 | ---円 |
敷金/礼金 | ---ヶ月/---ヶ月 |
仲介/FR | ---ヶ月/---ヶ月 |
所在階/向き | 10階/東 |
間取/面積 | 1LDK/43.21m2 |
入居日 | --- |
情報更新日 | 2024年5月17日 |
物件概要
◀︎ 建物詳細を見る物件名 | グランドコンシェルジュ蔵前 | ||
---|---|---|---|
所在地 | 東京都台東区蔵前4-10-8 | ||
最寄駅 | 都営浅草線「蔵前駅」徒歩3分 都営大江戸線「蔵前駅」徒歩7分 JR中央・総武線「浅草橋駅」徒歩9分 都営大江戸線「新御徒町駅」徒歩12分 東京メトロ銀座線「田原町駅」徒歩13分 |
||
物件特徴 | デザイナーズ、分譲賃貸、ペット可 | ||
階数構造 | 地上13階 RC造 | ||
総戸数 | 36戸 | 築年月 | 2019年4月 |
賃料 | ---円 | 管理費 | ---円 |
敷金/礼金 | ---ヶ月/---ヶ月 | 仲介手数料 | ---ヶ月 |
フリーレント | ---ヶ月 | 更新料 | ---ヶ月 |
所在階/向き | 10階/東 | 間取り | 1LDK |
平米数 | 43.21m2 | 部屋詳細 | LDK13.7帖/洋室4.6帖 |
契約形態 | 普通賃貸借契約 | 保証会社 | 利用必須 |
ペット飼育 | 不可 | SOHO・事務所 | 不可 |
入居日 | --- |
取引形態 | 媒介 |
問合番号 | 2579-1003 | 情報更新日 | 2024年5月17日 |
キャンペーン情報 | キャンペーンの詳細やお見積り等お気軽にお問合せください。 | ||
掲載されている部屋情報以外の空き待ちも承ります。お問合せください。 |
部屋設備
建物詳細を見るアクセス
※建物周辺情報はGoogleMapを使用しており、物件表示位置が実際の位置と多少異なる場合がございます。
募集中のお部屋一覧
チェックボックスでまとめてのお問い合わせや検討中リストへ追加が出来ます。
現在公開中の部屋情報がありません。
最新の情報はこちら
からお問い合わせください。
掲載情報について
- ※随時更新を心がけておりますが、掲載している物件が万が一成約している場合もございますので予めご了承下さいませ。
- ※掲載情報と現況が異なる場合、現況優先となります。
- ※各種キャンペーンは予告なく変更、終了する場合がございます。
- ※駐車場・駐輪場・バイク置場の空き状況についてはお問い合わせ下さい。
- ※ペット飼育やSOHO利用・楽器使用の可否に関しては、建物の管理規約で可能になっていても、お部屋の所有者様によって禁止の場合もございますので御注意下さい。
- 各詳細はメールやお電話にてスタッフまでお気軽にご相談下さい。
おすすめ物件紹介

nido三ノ輪
■2025年8月竣工■三ノ輪駅徒歩5分■総戸数29戸■東京都台東区三ノ輪1-14-5■地上11階 RC造

ルフォンプログレ田原町
■2025年8月竣工■田原町駅徒歩5分■総戸数74戸■東京都台東区元浅草3-21-11■地上15階 RC造

グランパセオ蔵前2
■2025年6月竣工■蔵前駅徒歩1分■総戸数26戸■東京都台東区蔵前3-20-11■地上14階 RC造■フリーレント2ヶ月

デュオフラッツ浅草蔵前
■2025年8月竣工■蔵前駅徒歩3分■総戸数25戸■東京都台東区蔵前4-31-12■地上13階 RC造

アーバネックス新御徒町駅前
■2025年7月竣工■新御徒町駅徒歩1分■総戸数27戸■東京都台東区台東4-23-4■地上11階 RC造■フリーレント1ヶ月

オープンブルーム入谷イースト
■2025年2月竣工■入谷駅徒歩7分■総戸数28戸■東京都台東区入谷2-6-7■地上15階 RC造■フリーレント1ヶ月

クラリティア浅草橋
■2025年3月竣工■浅草橋駅徒歩4分■総戸数42戸■東京都台東区浅草橋4-19-4■地上15階 RC造■フリーレント1ヶ月

ブリリアイスト新御徒町
■2025年2月竣工■新御徒町駅徒歩3分■総戸数42戸■東京都台東区元浅草3-17-7■地上14階 RC造■フリーレント2ヶ月

ブランシエスタ浅草雷門
■2025年2月竣工■田原町駅徒歩4分■総戸数49戸■東京都台東区雷門1-14-1■地上11階 RC造■フリーレント1ヶ月

アーバネックス北上野
■2025年3月竣工■入谷駅徒歩5分■総戸数45戸■東京都台東区北上野2-13-13■地上13階 RC造■フリーレント1ヶ月

シーズンフラッツ上野稲荷町
■2025年1月竣工■田原町駅徒歩6分■総戸数36戸■東京都台東区元浅草3-19-11■地上13階 RC造■フリーレント2ヶ月

グランパセオ蔵前
■2024年12月竣工■蔵前駅徒歩2分■総戸数33戸■東京都台東区蔵前3-12-3■地上12階 RC造

ザ・パークハビオ北千住
■2025年7月竣工■北千住駅徒歩4分■総戸数147戸■東京都足立区千住3丁目32■地上14階RC造■仲介手数料無料

リーフシティ市川ザ・レジデンス
■2025年5月竣工■市川駅徒歩6分■総戸数235戸■市川市市川南2■地上9階 RC造■仲介手数料無料

ロイヤルパークス品川
■2025年1月竣工■品川駅徒歩11分■総戸数458戸■東京都港区港南3-5-21■地上28階 地下1階 RC造■フリーレント2.5ヶ月

コンフォリア芝浦MOKU
■2024年10月竣工■田町駅徒歩9分■総戸数64戸■東京都港区芝浦4-11-16■地上9階 RC造