エルプレイス文京大塚 成約済み物件 (2948-103)
あなたの理想の暮らしを見つける。KATAROKU
賃料 | ---円 |
---|---|
共益費/管理費 | ---円 |
敷金/礼金 | ---ヶ月/---ヶ月 |
仲介/FR | ---ヶ月/---ヶ月 |
所在階/向き | 1階/東 |
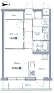
間取/面積 | 1LDK/40.13m2 |
入居日 | --- |
情報更新日 | 2024年7月30日 |
エルプレイス文京大塚 成約済み物件 (2948-103)
あなたの理想の暮らしを見つける。KATAROKU
賃料 | ---円 |
---|---|
共益費/管理費 | ---円 |
敷金/礼金 | ---ヶ月/---ヶ月 |
仲介/FR | ---ヶ月/---ヶ月 |
所在階/向き | 1階/東 |
間取/面積 | 1LDK/40.13m2 |
入居日 | --- |
情報更新日 | 2024年7月30日 |
物件概要
◀︎ 建物詳細を見る物件名 | エルプレイス文京大塚 | ||
---|---|---|---|
所在地 | 東京都文京区大塚6-26-7 | ||
最寄駅 | 東京メトロ有楽町線「東池袋駅」徒歩8分 東京メトロ丸ノ内線「新大塚駅」徒歩8分 都電荒川線「向原駅」徒歩7分 JR山手線「大塚駅」徒歩11分 東京メトロ有楽町線「護国寺駅」徒歩12分 |
||
物件特徴 | REIT系ブランドマンション、デザイナーズ | ||
階数構造 | 地上3階 RC造 | ||
総戸数 | 41戸 | 築年月 | 2021年3月 |
賃料 | ---円 | 管理費 | ---円 |
敷金/礼金 | ---ヶ月/---ヶ月 | 仲介手数料 | ---ヶ月 |
フリーレント | ---ヶ月 | 更新料 | ---ヶ月 |
所在階/向き | 1階/東 | 間取り | 1LDK |
平米数 | 40.13m2 | 部屋詳細 | LDK12.61帖/洋室4.66帖 |
契約形態 | 普通賃貸借契約 | 保証会社 | 利用必須 |
ペット飼育 | 不可 | SOHO・事務所 | 不可 |
入居日 | --- |
取引形態 | 媒介 |
問合番号 | 2948-103 | 情報更新日 | 2024年7月30日 |
キャンペーン情報 | キャンペーンの詳細やお見積り等お気軽にお問合せください。 | ||
掲載されている部屋情報以外の空き待ちも承ります。お問合せください。 |
部屋設備
建物詳細を見るアクセス
※建物周辺情報はGoogleMapを使用しており、物件表示位置が実際の位置と多少異なる場合がございます。
募集中のお部屋一覧
チェックボックスでまとめてのお問い合わせや検討中リストへ追加が出来ます。
現在公開中の部屋情報がありません。
最新の情報はこちら
からお問い合わせください。
掲載情報について
- ※随時更新を心がけておりますが、掲載している物件が万が一成約している場合もございますので予めご了承下さいませ。
- ※掲載情報と現況が異なる場合、現況優先となります。
- ※各種キャンペーンは予告なく変更、終了する場合がございます。
- ※駐車場・駐輪場・バイク置場の空き状況についてはお問い合わせ下さい。
- ※ペット飼育やSOHO利用・楽器使用の可否に関しては、建物の管理規約で可能になっていても、お部屋の所有者様によって禁止の場合もございますので御注意下さい。
- 各詳細はメールやお電話にてスタッフまでお気軽にご相談下さい。
おすすめ物件紹介

クラシアム文京白山
■2025年7月竣工■白山駅徒歩7分■総戸数48戸■東京都文京区白山4-36-17■地上10階 RC造■フリーレント1ヶ月

ジオエント駒込
■2025年8月竣工■駒込駅徒歩6分■総戸数39戸■東京都文京区本駒込5-21-9■地上7階 RC造

ガリシア文京本駒込
■2025年7月竣工■駒込駅徒歩7分■総戸数20戸■東京都文京区本駒込5-59-5■地上8階 RC造

アジールコート後楽園
■2025年5月竣工■春日駅徒歩7分■総戸数34戸■東京都文京区白山1-3-5■地上5階 RC造

パークアクシス文京本郷
■2025年5月竣工■本郷三丁目駅徒歩6分■総戸数146戸■東京都文京区本郷5-5-18■地上8階 RC造

タスキプライムテラス後楽園
■2025年4月竣工■江戸川橋駅徒歩10分■総戸数27戸■東京都文京区水道1-7-10■地上8階 RC造

アーバネックス文京小石川
■2025年4月竣工■春日駅徒歩10分■総戸数26戸■東京都文京区小石川3-36-8■地上5階 RC造■フリーレント2ヶ月

レガシア御茶ノ水
■2025年2月竣工■本郷三丁目駅徒歩5分■総戸数17戸■東京都文京区本郷2-12-7■地上10階 RC造■フリーレント1ヶ月

リビオメゾン御茶ノ水イースト
■2025年2月竣工■御茶ノ水駅徒歩5分■総戸数60戸■東京都文京区湯島1-11-14■地上13階 RC造■フリーレント1.5ヶ月

ピグナ文京千石
■2024年11月竣工■千石駅徒歩5分■総戸数39戸■東京都文京区千石4-43-9■地上12階 RC造

プレール・ドゥーク文京本郷
■2024年7月竣工■本郷三丁目駅徒歩2分■総戸数27戸■東京都文京区本郷2-38-14■地上12階 RC造

ACPレジデンス文京春日
■2024年4月竣工■後楽園駅徒歩11分■総戸数70戸■東京都文京区春日2-16-8■地上5階 地下1階 RC造

ザ・パークハビオ北千住
■2025年7月竣工■北千住駅徒歩4分■総戸数147戸■東京都足立区千住3丁目32■地上14階RC造■仲介手数料無料

リーフシティ市川ザ・レジデンス
■2025年5月竣工■市川駅徒歩6分■総戸数235戸■市川市市川南2■地上9階 RC造■仲介手数料無料

ロイヤルパークス品川
■2025年1月竣工■品川駅徒歩11分■総戸数458戸■東京都港区港南3-5-21■地上28階 地下1階 RC造■フリーレント2.5ヶ月

コンフォリア芝浦MOKU
■2024年10月竣工■田町駅徒歩9分■総戸数64戸■東京都港区芝浦4-11-16■地上9階 RC造