コンフォリア西蒲田 成約済み物件 (3890-1405)
あなたの理想の暮らしを見つける。KATAROKU
賃料 | ---円 |
---|---|
共益費/管理費 | ---円 |
敷金/礼金 | ---ヶ月/---ヶ月 |
仲介/FR | ---ヶ月/---ヶ月 |
所在階/向き | 14階/西 |
間取/面積 | 1LDK/36.77m2 |
入居日 | --- |
情報更新日 | 2025年1月26日 |
コンフォリア西蒲田 成約済み物件 (3890-1405)
あなたの理想の暮らしを見つける。KATAROKU
賃料 | ---円 |
---|---|
共益費/管理費 | ---円 |
敷金/礼金 | ---ヶ月/---ヶ月 |
仲介/FR | ---ヶ月/---ヶ月 |
所在階/向き | 14階/西 |
間取/面積 | 1LDK/36.77m2 |
入居日 | --- |
情報更新日 | 2025年1月26日 |
物件概要
◀︎ 建物詳細を見る物件名 | コンフォリア西蒲田 | ||
---|---|---|---|
所在地 | 東京都大田区西蒲田6-37-3 | ||
最寄駅 | JR京浜東北線「蒲田駅」徒歩4分 東急多摩川線「蒲田駅」徒歩6分 東急池上線「蒲田駅」徒歩6分 東急池上線「蓮沼駅」徒歩6分 京急本線「京急蒲田駅」徒歩15分 |
||
物件特徴 | REIT系ブランドマンション、デザイナーズ、ペット可 | ||
階数構造 | 地上15階 RC造 | ||
総戸数 | 103戸 | 築年月 | 2009年2月 |
賃料 | ---円 | 管理費 | ---円 |
敷金/礼金 | ---ヶ月/---ヶ月 | 仲介手数料 | ---ヶ月 |
フリーレント | ---ヶ月 | 更新料 | ---ヶ月 |
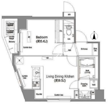
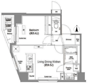
所在階/向き | 14階/西 | 間取り | 1LDK |
平米数 | 36.77m2 | 部屋詳細 | LDK9.5帖/洋室5.6帖 |
契約形態 | 普通賃貸借契約 | 保証会社 | 利用必須 |
ペット飼育 |
可 敷1積増
|
SOHO・事務所 | 不可 |
入居日 | --- |
取引形態 | 媒介 |
問合番号 | 3890-1405 | 情報更新日 | 2025年1月26日 |
キャンペーン情報 | キャンペーンの詳細やお見積り等お気軽にお問合せください。 | ||
掲載されている部屋情報以外の空き待ちも承ります。お問合せください。 |
部屋設備
建物詳細を見るアクセス
※建物周辺情報はGoogleMapを使用しており、物件表示位置が実際の位置と多少異なる場合がございます。
募集中のお部屋一覧
チェックボックスでまとめてのお問い合わせや検討中リストへ追加が出来ます。
掲載情報について
- ※随時更新を心がけておりますが、掲載している物件が万が一成約している場合もございますので予めご了承下さいませ。
- ※掲載情報と現況が異なる場合、現況優先となります。
- ※各種キャンペーンは予告なく変更、終了する場合がございます。
- ※駐車場・駐輪場・バイク置場の空き状況についてはお問い合わせ下さい。
- ※ペット飼育やSOHO利用・楽器使用の可否に関しては、建物の管理規約で可能になっていても、お部屋の所有者様によって禁止の場合もございますので御注意下さい。
- 各詳細はメールやお電話にてスタッフまでお気軽にご相談下さい。
おすすめ物件紹介

ザ・パークハビオ大森山王
■2025年6月竣工■大森駅徒歩2分■総戸数115戸■東京都大田区山王2-3-10■地上18階 RC造

コンフォリア・リヴ大森西
■2025年8月竣工■大森町駅徒歩11分■総戸数98戸■東京都大田区大森西4-5-3■地上8階 RC造

クレストコート池上
■2025年3月竣工■池上駅徒歩3分■総戸数46戸■東京都大田区池上6-5-4■地上14階 RC造■フリーレント1ヶ月

ザ・パークハビオ大森町
■2025年5月竣工■大森町駅徒歩2分■総戸数84戸■東京都大田区大森中1-2-26■地上15階 RC造

JP noie 西蒲田
■2025年5月竣工■蓮沼駅徒歩2分■総戸数59戸■東京都大田区西蒲田7-37-3■地上14階 RC造

クレストコート池上六丁目
■2025年3月竣工■池上駅徒歩6分■総戸数34戸■東京都大田区池上6-31-1■地上5階 RC造■フリーレント2ヶ月

KDXレジデンス田園調布南
■2025年3月竣工■鵜の木駅徒歩9分■総戸数64戸■東京都大田区鵜の木3-31-7■地上5階 RC造■フリーレント2ヶ月

グランパセオ蒲田ウエスト
■2024年9月竣工■池上駅徒歩5分■総戸数35戸■東京都大田区西蒲田2-6-18■地上5階 RC造■フリーレント2ヶ月

nido蒲田
■2024年12月竣工■蓮沼駅徒歩4分■総戸数48戸■京都大田区西蒲田7-34-2■地上13階 RC造

クレヴィアリグゼ西馬込
■2025年1月竣工■2西馬込駅徒歩12分■2総戸数67戸■2東京都大田区仲池上1-15-23■2地上8階 RC造

プライムネクサス大森北
■2025年1月竣工■平和島駅徒歩9分■総戸数272戸■東京都大田区大森北5-8-11■地上8階 RC造■フリーレント1ヶ月

ブランシエスタ西馬込
■2025年1月竣工■西馬込駅徒歩12分■総戸数67戸■東京都大田区仲池上1-27-24■地上7階 RC造■フリーレント1ヶ月

ザ・パークハビオ北千住
■2025年7月竣工■北千住駅徒歩4分■総戸数147戸■東京都足立区千住3丁目32■地上14階RC造■仲介手数料無料

リーフシティ市川ザ・レジデンス
■2025年5月竣工■市川駅徒歩6分■総戸数235戸■市川市市川南2■地上9階 RC造■仲介手数料無料

ロイヤルパークス品川
■2025年1月竣工■品川駅徒歩11分■総戸数458戸■東京都港区港南3-5-21■地上28階 地下1階 RC造■フリーレント2.5ヶ月

コンフォリア芝浦MOKU
■2024年10月竣工■田町駅徒歩9分■総戸数64戸■東京都港区芝浦4-11-16■地上9階 RC造