ザ・プレミアムキューブG東中野 成約済み物件 (5561-128)
あなたの理想の暮らしを見つける。KATAROKU
賃料 | ---円 |
---|---|
共益費/管理費 | ---円 |
敷金/礼金 | ---ヶ月/---ヶ月 |
仲介/FR | ---ヶ月/---ヶ月 |
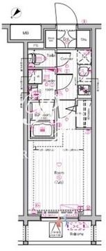
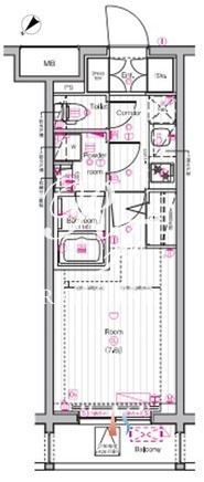
所在階/向き | 1階/北西 |
間取/面積 | 1K/25.50m2 |
入居日 | --- |
情報更新日 | 2024年2月14日 |
ザ・プレミアムキューブG東中野 成約済み物件 (5561-128)
あなたの理想の暮らしを見つける。KATAROKU
賃料 | ---円 |
---|---|
共益費/管理費 | ---円 |
敷金/礼金 | ---ヶ月/---ヶ月 |
仲介/FR | ---ヶ月/---ヶ月 |
所在階/向き | 1階/北西 |
間取/面積 | 1K/25.50m2 |
入居日 | --- |
情報更新日 | 2024年2月14日 |
物件概要
◀︎ 建物詳細を見る物件名 | ザ・プレミアムキューブG東中野 | ||
---|---|---|---|
所在地 | 東京都中野区東中野5-20-7 | ||
最寄駅 | JR中央・総武線「東中野駅」徒歩7分 東京メトロ東西線「落合駅」徒歩7分 都営大江戸線「東中野駅」徒歩10分 JR中央・総武線「大久保駅」徒歩15分 JR山手線「高田馬場駅」徒歩19分 |
||
物件特徴 | デザイナーズ、分譲賃貸、ペット可 | ||
階数構造 | 地上5階 RC造 | ||
総戸数 | 152戸 | 築年月 | 2023年11月 |
賃料 | ---円 | 管理費 | ---円 |
敷金/礼金 | ---ヶ月/---ヶ月 | 仲介手数料 | ---ヶ月 |
フリーレント | ---ヶ月 | 更新料 | ---ヶ月 |
所在階/向き | 1階/北西 | 間取り | 1K |
平米数 | 25.50m2 | 部屋詳細 | 洋室7.6帖/K2帖 |
契約形態 | 普通賃貸借契約 | 保証会社 | 利用必須 |
ペット飼育 |
可 共益費3,500円増
|
SOHO・事務所 | 不可 |
入居日 | --- |
取引形態 | 媒介 |
問合番号 | 5561-128 | 情報更新日 | 2024年2月14日 |
キャンペーン情報 | キャンペーンの詳細やお見積り等お気軽にお問合せください。 | ||
掲載されている部屋情報以外の空き待ちも承ります。お問合せください。 |
部屋設備
建物詳細を見るアクセス
※建物周辺情報はGoogleMapを使用しており、物件表示位置が実際の位置と多少異なる場合がございます。
募集中のお部屋一覧
チェックボックスでまとめてのお問い合わせや検討中リストへ追加が出来ます。
掲載情報について
- ※随時更新を心がけておりますが、掲載している物件が万が一成約している場合もございますので予めご了承下さいませ。
- ※掲載情報と現況が異なる場合、現況優先となります。
- ※各種キャンペーンは予告なく変更、終了する場合がございます。
- ※駐車場・駐輪場・バイク置場の空き状況についてはお問い合わせ下さい。
- ※ペット飼育やSOHO利用・楽器使用の可否に関しては、建物の管理規約で可能になっていても、お部屋の所有者様によって禁止の場合もございますので御注意下さい。
- 各詳細はメールやお電話にてスタッフまでお気軽にご相談下さい。
おすすめ物件紹介

コンフォリア・リヴ東中野
■2025年6月竣工■落合駅徒歩9分■総戸数35戸■東京都中野区上高田1-24-3■地上3階 RC造

ラティエラ中野新井
■2025年8月竣工■新井薬師前駅徒歩9分■総戸数46戸■東京都中野区新井1-27-5■地上8階 RC造

アーバンパーク江古田の森
■2025年3月竣工■新江古田駅徒歩5分■総戸数68戸■東京都中野区江原町2-20-8■地上6階 RC造■フリーレント1ヶ月

プライムブリス中野富士見町2
■2025年6月竣工■中野富士見町駅徒歩3分■総戸数22戸■東京都中野区本町5-44-4■地上5階 RC造■フリーレント2ヶ月

プライムブリス中野富士見町1
■2025年6月竣工■中野富士見町駅徒歩4分■総戸数29戸■東京都中野区本町5-44-1■地上5階 RC造■フリーレント2ヶ月

パセオ中野新橋
■2025年3月竣工■中野新橋駅徒歩9分■総戸数20戸■東京都中野区弥生町4-2-13■地上4階 RC造

コンフォリア・リヴ新中野サウス
■2025年3月竣工■新中野駅徒歩4分■総戸数69戸■東京都中野区本町6-12-9■地上10階 RC造

ワンルーフレジデンス中野南台
■2024年8月竣工■中野富士見町駅10分■総戸数60戸■東京都中野区南台3-6-26■地上12階 RC造■フリーレント1ヶ月

ジオエント新中野
■2025年3月竣工■新中野駅徒歩1分■総戸数42戸■東京都中野区中央4-4-3■地上7階 RC造■フリーレント1ヶ月

ウェルスクエア新中野
■2024年12月竣工■新中野駅徒歩4分■総戸数16戸■東京都中野区中央3-36-17■地上4階 RC造

メトロステージPLUS中野弥生町
■2024年11月竣工■中野富士見町駅徒歩6分■総戸数119戸■東京都中野区弥生町5-9-11■地上7階 RC造

プラウドフラット中野
■2020年7月竣工■中野駅徒歩6分■総戸数165戸■東京都中野区中野5-38-8■地上4階 RC造

ザ・パークハビオ北千住
■2025年7月竣工■北千住駅徒歩4分■総戸数147戸■東京都足立区千住3丁目32■地上14階RC造■仲介手数料無料

リーフシティ市川ザ・レジデンス
■2025年5月竣工■市川駅徒歩6分■総戸数235戸■市川市市川南2■地上9階 RC造■仲介手数料無料

ロイヤルパークス品川
■2025年1月竣工■品川駅徒歩11分■総戸数458戸■東京都港区港南3-5-21■地上28階 地下1階 RC造■フリーレント2.5ヶ月

コンフォリア芝浦MOKU
■2024年10月竣工■田町駅徒歩9分■総戸数64戸■東京都港区芝浦4-11-16■地上9階 RC造