アジールコート板橋本町 成約済み物件 (5660-902)
あなたの理想の暮らしを見つける。KATAROKU
賃料 | ---円 |
---|---|
共益費/管理費 | ---円 |
敷金/礼金 | ---ヶ月/---ヶ月 |
仲介/FR | ---ヶ月/---ヶ月 |
所在階/向き | 9階/南 |
間取/面積 | 1LDK+WIC/35.67m2 |
入居日 | --- |
情報更新日 | 2024年2月22日 |
アジールコート板橋本町 成約済み物件 (5660-902)
あなたの理想の暮らしを見つける。KATAROKU
賃料 | ---円 |
---|---|
共益費/管理費 | ---円 |
敷金/礼金 | ---ヶ月/---ヶ月 |
仲介/FR | ---ヶ月/---ヶ月 |
所在階/向き | 9階/南 |
間取/面積 | 1LDK+WIC/35.67m2 |
入居日 | --- |
情報更新日 | 2024年2月22日 |
物件概要
◀︎ 建物詳細を見る物件名 | アジールコート板橋本町 | ||
---|---|---|---|
所在地 | 東京都板橋区本町10-14 | ||
最寄駅 | 都営三田線「板橋本町駅」徒歩4分 JR埼京線「十条駅」徒歩17分 都営三田線「本蓮沼駅」徒歩18分 都営三田線「板橋区役所前駅」徒歩19分 JR京浜東北線「東十条駅」徒歩24分 |
||
物件特徴 | REIT系ブランドマンション、デザイナーズ、ペット可 | ||
階数構造 | 地上9階 RC造 | ||
総戸数 | 40戸 | 築年月 | 2024年2月 |
賃料 | ---円 | 管理費 | ---円 |
敷金/礼金 | ---ヶ月/---ヶ月 | 仲介手数料 | ---ヶ月 |
フリーレント | ---ヶ月 | 更新料 | ---ヶ月 |
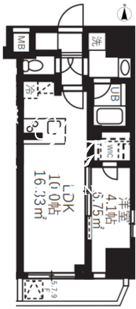
所在階/向き | 9階/南 | 間取り | 1LDK+WIC |
平米数 | 35.67m2 | 部屋詳細 | LDK10帖/洋室4.1帖 |
契約形態 | 普通賃貸借契約 | 保証会社 | 利用必須 |
ペット飼育 | 不可 | SOHO・事務所 | 不可 |
入居日 | --- |
取引形態 | 媒介 |
問合番号 | 5660-902 | 情報更新日 | 2024年2月22日 |
キャンペーン情報 | キャンペーンの詳細やお見積り等お気軽にお問合せください。 | ||
掲載されている部屋情報以外の空き待ちも承ります。お問合せください。 |
部屋設備
建物詳細を見るアクセス
※建物周辺情報はGoogleMapを使用しており、物件表示位置が実際の位置と多少異なる場合がございます。
募集中のお部屋一覧
チェックボックスでまとめてのお問い合わせや検討中リストへ追加が出来ます。
掲載情報について
- ※随時更新を心がけておりますが、掲載している物件が万が一成約している場合もございますので予めご了承下さいませ。
- ※掲載情報と現況が異なる場合、現況優先となります。
- ※各種キャンペーンは予告なく変更、終了する場合がございます。
- ※駐車場・駐輪場・バイク置場の空き状況についてはお問い合わせ下さい。
- ※ペット飼育やSOHO利用・楽器使用の可否に関しては、建物の管理規約で可能になっていても、お部屋の所有者様によって禁止の場合もございますので御注意下さい。
- 各詳細はメールやお電話にてスタッフまでお気軽にご相談下さい。
おすすめ物件紹介

ベルシード板橋本町プレミア2
■2025年5月竣工■板橋本町駅徒歩7分■総戸数62戸■東京都板橋区清水町55-3■地上10階 RC造

クラリティア板橋本町
■2025年3月竣工■板橋本町駅徒歩4分■総戸数29戸■東京都板橋区清水町26-9■地上7階 RC造■フリーレント1ヶ月

エスレジデンス高島平アソレア
■2025年7月竣工■西台駅徒歩10分■総戸数66戸■東京都板橋区高島平9-29-8■地上9階 RC造■フリーレント1ヶ月

プライムブリス板橋本町
■2025年9月竣工■板橋本町駅徒歩6分■総戸数29戸■東京都板橋区清水町46-8■地上14階 RC造

ザ・ケンジントン・レジデンスときわ台
■2025年3月竣工■ときわ台駅徒歩10分■総戸数160戸■東京都板橋区前野町2-35-4■地上5階 RC造■フリーレント2ヶ月

ソライエアイルときわ台
■2025年2月竣工■ときわ台駅徒歩1分■総戸数69戸■東京都板橋区常盤台2-1-1■地上6階 RC造

オルサス志村坂上
■2025年2月竣工■志村三丁目駅徒歩10分■総戸数78戸■東京都板橋区前野町4-33-2■地上5階 RC造■フリーレント2ヶ月

アーバンパーク志村坂上
■2024年12月竣工■志村坂上駅徒歩8分■総戸数47戸■東京都板橋区志村1-26-5■地上5階 地下1階 RC造

コンフォリア北池袋
■2024年10月竣工■下板橋駅徒歩10分■総戸数49戸■東京都板橋区熊野町2-6■地上11階 RC造

パークアクシス板橋本町ステーションゲート
■2024年12月竣工■板橋本町駅徒歩3分■総戸数86戸■東京都板橋区清水町36-4■地上12階 地下1階 RC造■フリーレント2ヶ月

ライブカーサ西台
■2024年10月竣工■西台駅徒歩5分■総戸数42戸■東京都板橋区高島平9-6-5■地上10階 RC造■フリーレント3ヶ月

グローリオシェルト志村坂上
■2024年8月竣工■志村坂上駅徒歩5分■総戸数29戸■東京都板橋区小豆沢2-21-10■地上4階 RC造

ザ・パークハビオ北千住
■2025年7月竣工■北千住駅徒歩4分■総戸数147戸■東京都足立区千住3丁目32■地上14階RC造■仲介手数料無料

リーフシティ市川ザ・レジデンス
■2025年5月竣工■市川駅徒歩6分■総戸数235戸■市川市市川南2■地上9階 RC造■仲介手数料無料

ロイヤルパークス品川
■2025年1月竣工■品川駅徒歩11分■総戸数458戸■東京都港区港南3-5-21■地上28階 地下1階 RC造■フリーレント2.5ヶ月

コンフォリア芝浦MOKU
■2024年10月竣工■田町駅徒歩9分■総戸数64戸■東京都港区芝浦4-11-16■地上9階 RC造