ベルシード西巣鴨 成約済み物件 (5775-802)
あなたの理想の暮らしを見つける。KATAROKU
賃料 | ---円 |
---|---|
共益費/管理費 | ---円 |
敷金/礼金 | ---ヶ月/---ヶ月 |
仲介/FR | ---ヶ月/---ヶ月 |
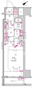
所在階/向き | 8階/南東 |
間取/面積 | 1K/25.42m2 |
入居日 | --- |
情報更新日 | 2024年10月8日 |
ベルシード西巣鴨 成約済み物件 (5775-802)
あなたの理想の暮らしを見つける。KATAROKU
賃料 | ---円 |
---|---|
共益費/管理費 | ---円 |
敷金/礼金 | ---ヶ月/---ヶ月 |
仲介/FR | ---ヶ月/---ヶ月 |
所在階/向き | 8階/南東 |
間取/面積 | 1K/25.42m2 |
入居日 | --- |
情報更新日 | 2024年10月8日 |
物件概要
◀︎ 建物詳細を見る物件名 | ベルシード西巣鴨 | ||
---|---|---|---|
所在地 | 東京都北区滝野川3-3-3 | ||
最寄駅 | 都営三田線「西巣鴨駅」徒歩5分 都電荒川線「西ヶ原四丁目駅」徒歩5分 都電荒川線「滝野川一丁目駅」徒歩8分 都電荒川線「新庚申塚駅」徒歩10分 都電荒川線「庚申塚駅」徒歩13分 |
||
物件特徴 | デザイナーズ、分譲賃貸、ペット可 | ||
階数構造 | 地上15階 RC造 | ||
総戸数 | 56戸 | 築年月 | 2020年6月 |
賃料 | ---円 | 管理費 | ---円 |
敷金/礼金 | ---ヶ月/---ヶ月 | 仲介手数料 | ---ヶ月 |
フリーレント | ---ヶ月 | 更新料 | ---ヶ月 |
所在階/向き | 8階/南東 | 間取り | 1K |
平米数 | 25.42m2 | 部屋詳細 | 洋室8帖/K2帖 |
契約形態 | 普通賃貸借契約 | 保証会社 | 利用必須 |
ペット飼育 |
可 敷1積増
|
SOHO・事務所 | 不可 |
入居日 | --- |
取引形態 | 媒介 |
問合番号 | 5775-802 | 情報更新日 | 2024年10月8日 |
キャンペーン情報 | キャンペーンの詳細やお見積り等お気軽にお問合せください。 | ||
掲載されている部屋情報以外の空き待ちも承ります。お問合せください。 |
部屋設備
建物詳細を見るアクセス
※建物周辺情報はGoogleMapを使用しており、物件表示位置が実際の位置と多少異なる場合がございます。
募集中のお部屋一覧
チェックボックスでまとめてのお問い合わせや検討中リストへ追加が出来ます。
掲載情報について
- ※随時更新を心がけておりますが、掲載している物件が万が一成約している場合もございますので予めご了承下さいませ。
- ※掲載情報と現況が異なる場合、現況優先となります。
- ※各種キャンペーンは予告なく変更、終了する場合がございます。
- ※駐車場・駐輪場・バイク置場の空き状況についてはお問い合わせ下さい。
- ※ペット飼育やSOHO利用・楽器使用の可否に関しては、建物の管理規約で可能になっていても、お部屋の所有者様によって禁止の場合もございますので御注意下さい。
- 各詳細はメールやお電話にてスタッフまでお気軽にご相談下さい。
おすすめ物件紹介

ロイヤルパークス赤羽ノース
■2025年9月旬竣工■志茂駅徒歩8分■総戸数474戸■東京都北区神谷3-14-3■地上10階 RC造■フリーレント2ヶ月

ネオアーバンレジデンス駒込
■2025年7月竣工■駒込駅徒歩6分■総戸数23戸■東京都北区西ケ原1-6-6■地上12階 RC造■フリーレント1ヶ月

アリビス東京尾久
■2025年7月竣工■尾久駅徒歩1分■総戸数55戸■東京都北区昭和町2-7-1■地上14階 RC造

テラス駒込サウス
■2025年6月竣工■駒込駅徒歩4分■総戸数33戸■東京都北区中里1-1-8■地上12階 RC造■フリーレント1ヶ月

ロイヤルパークス赤羽サウス
■2025年2月竣工■志茂駅徒歩10分■総戸数46戸■東京都北区神谷3-22-1■地上7階 RC造■フリーレント2ヶ月

シーズンフラッツ東十条
■2025年1月竣工■東十条駅徒歩3分■総戸数39戸■東京都北区東十条2-15-11■地上14階 RC造■フリーレント2ヶ月

グランパセオ田端2
■2024年12月竣工■赤土小学校前駅徒歩7分■総戸数54戸■東京都北区田端新町3-6-11■地上12階 RC造■フリーレント2ヶ月

サンセゾンI
■1998年2月竣工■志茂駅徒歩3分■総戸数74戸■東京都北区志茂4-39-5■地上5階 地下1階 RC造■フリーレント1ヶ月

RJRプレシア東十条ガーデン
■2025年2月竣工■東十条駅徒歩4分■総戸数279戸■東京都北区東十条3-3-1■地上14階 RC造

シーフォルム西巣鴨
■2024年12月竣工■西巣鴨駅徒歩7分■総戸数45戸■東京都北区滝野川3-43-12■地上5階 RC造■フリーレント2ヶ月

コンシェリア駒込ヒルトップスクエア
■2024年8月竣工■駒込駅徒歩8分■総戸数28戸■東京都北区中里3-11-12■地上7階 RC造

オープンブルーム王子
■2024年8月竣工■梶原駅徒歩4分■総戸数41戸■東京都北区堀船2-9-16■地上10階 RC造■フリーレント1ヶ月

ザ・パークハビオ北千住
■2025年7月竣工■北千住駅徒歩4分■総戸数147戸■東京都足立区千住3丁目32■地上14階RC造■仲介手数料無料

リーフシティ市川ザ・レジデンス
■2025年5月竣工■市川駅徒歩6分■総戸数235戸■市川市市川南2■地上9階 RC造■仲介手数料無料

ロイヤルパークス品川
■2025年1月竣工■品川駅徒歩11分■総戸数458戸■東京都港区港南3-5-21■地上28階 地下1階 RC造■フリーレント2.5ヶ月

コンフォリア芝浦MOKU
■2024年10月竣工■田町駅徒歩9分■総戸数64戸■東京都港区芝浦4-11-16■地上9階 RC造