ズーム新宿御苑前 成約済み物件 (6232-1406)
あなたの理想の暮らしを見つける。KATAROKU

賃料 | ---円 |
---|---|
共益費/管理費 | ---円 |
敷金/礼金 | ---ヶ月/---ヶ月 |
仲介/FR | ---ヶ月/---ヶ月 |
所在階/向き | 14階/北東 |
間取/面積 | 1DK+WIC+ロフト/31.23m2 |
入居日 | --- |
情報更新日 | 2025年4月25日 |
ズーム新宿御苑前 成約済み物件 (6232-1406)
あなたの理想の暮らしを見つける。KATAROKU

賃料 | ---円 |
---|---|
共益費/管理費 | ---円 |
敷金/礼金 | ---ヶ月/---ヶ月 |
仲介/FR | ---ヶ月/---ヶ月 |
所在階/向き | 14階/北東 |
間取/面積 | 1DK+WIC+ロフト/31.23m2 |
入居日 | --- |
情報更新日 | 2025年4月25日 |
物件概要
◀︎ 建物詳細を見る物件名 | ズーム新宿御苑前 | ||
---|---|---|---|
所在地 | 東京都新宿区新宿1-26-11 | ||
最寄駅 | 東京メトロ丸ノ内線「新宿御苑前駅」徒歩7分 東京メトロ副都心線「新宿三丁目駅」徒歩9分 都営新宿線「曙橋駅」徒歩9分 東京メトロ丸ノ内線「四谷三丁目駅」徒歩12分 JR山手線「新宿駅」徒歩19分 |
||
物件特徴 | デザイナーズ、分譲賃貸、ペット可 | ||
階数構造 | 地上15階 RC造 | ||
総戸数 | 118戸 | 築年月 | 2024年9月 |
賃料 | ---円 | 管理費 | ---円 |
敷金/礼金 | ---ヶ月/---ヶ月 | 仲介手数料 | ---ヶ月 |
フリーレント | ---ヶ月 | 更新料 | ---ヶ月 |
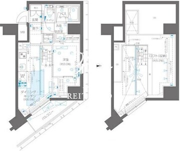
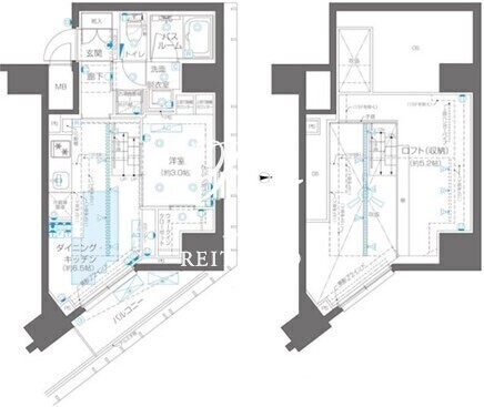
所在階/向き | 14階/北東 | 間取り | 1DK+WIC+ロフト |
平米数 | 31.23m2 | 部屋詳細 | DK6.5帖/洋室3帖/ロフト5.2帖 |
契約形態 | 普通賃貸借契約 | 保証会社 | 利用必須 |
ペット飼育 |
可 敷1積増
|
SOHO・事務所 | 不可 |
入居日 | --- |
取引形態 | 媒介 |
問合番号 | 6232-1406 | 情報更新日 | 2025年4月25日 |
キャンペーン情報 | キャンペーンの詳細やお見積り等お気軽にお問合せください。 | ||
掲載されている部屋情報以外の空き待ちも承ります。お問合せください。 |
部屋設備
建物詳細を見るアクセス
※建物周辺情報はGoogleMapを使用しており、物件表示位置が実際の位置と多少異なる場合がございます。
募集中のお部屋一覧
チェックボックスでまとめてのお問い合わせや検討中リストへ追加が出来ます。
掲載情報について
- ※随時更新を心がけておりますが、掲載している物件が万が一成約している場合もございますので予めご了承下さいませ。
- ※掲載情報と現況が異なる場合、現況優先となります。
- ※各種キャンペーンは予告なく変更、終了する場合がございます。
- ※駐車場・駐輪場・バイク置場の空き状況についてはお問い合わせ下さい。
- ※ペット飼育やSOHO利用・楽器使用の可否に関しては、建物の管理規約で可能になっていても、お部屋の所有者様によって禁止の場合もございますので御注意下さい。
- 各詳細はメールやお電話にてスタッフまでお気軽にご相談下さい。
おすすめ物件紹介

コンフォリア・リヴ北新宿
■2025年2月竣工■東中野駅徒歩9分■総戸数48戸■東京都新宿区北新宿4-13-10■地上13階 RC造

アーバネックス早稲田
■2025年9月竣工■早稲田駅徒歩2分■総戸数38戸■東京都新宿区早稲田町69-1■地上10階 RC造

アクシルコート早稲田
■2025年4月竣工■江戸川橋駅徒歩6分■総戸数55戸■東京都新宿区早稲田鶴巻町566■地上13階 RC造

リビオメゾン新宿ウエスト
■2025年7月竣工■新宿西口駅徒歩4分■総戸数27戸■東京都新宿区西新宿7-14-10■地上14階 RC造

Reframe5早稲田
■2025年7月竣工■早稲田駅徒歩4分■総戸数38戸■東京都新宿区早稲田鶴巻町508-1■地上10階 RC造

モンテヴェルデ神楽坂弐番館
■2025年1月竣工■飯田橋駅徒歩5分■総戸数23戸■東京都新宿区新小川町9-2■地上6階 RC造

ウェルスクエア新宿戸山
■2025年6月竣工■若松河田駅徒歩6分■総戸数27戸■東京都新宿区戸山1-2-14■地上4階 地下1階 RC造

ルミーク早稲田
■2025年6月竣工■早稲田駅徒歩2分■総戸数16戸■東京都新宿区喜久井町50-1■地上7階 地下1階 RC造

ザ・パークハビオ神楽坂レジデンスサウス
■2025年6月竣工■神楽坂駅徒歩8分■総戸数254戸■東京都新宿区東五軒町6-8■地上10階 RC造

ベルファース西早稲田
■2025年3月竣工■西早稲田駅徒歩5分■総戸数35戸■東京都新宿区大久保3-2-2■地上6階 RC造■フリーレント1ヶ月

パークアクシス新宿西落合
■2025年3月竣工■落合南長崎駅徒歩9分■総戸数40戸■東京都新宿区西落合2-7-14■地上9階 RC造■フリーレント2ヶ月

レクシード目白
■2024年5月竣工■目白駅徒歩7分■総戸数65戸■東京都新宿区下落合3-15-29■地上4階 RC造

ザ・パークハビオ北千住
■2025年7月竣工■北千住駅徒歩4分■総戸数147戸■東京都足立区千住3丁目32■地上14階RC造■仲介手数料無料

リーフシティ市川ザ・レジデンス
■2025年5月竣工■市川駅徒歩6分■総戸数235戸■市川市市川南2■地上9階 RC造■仲介手数料無料

ロイヤルパークス品川
■2025年1月竣工■品川駅徒歩11分■総戸数458戸■東京都港区港南3-5-21■地上28階 地下1階 RC造■フリーレント2.5ヶ月

コンフォリア芝浦MOKU
■2024年10月竣工■田町駅徒歩9分■総戸数64戸■東京都港区芝浦4-11-16■地上9階 RC造