エルフォルテ東日暮里 成約済み物件 (6388-703)
あなたの理想の暮らしを見つける。KATAROKU
賃料 | ---円 |
---|---|
共益費/管理費 | ---円 |
敷金/礼金 | ---ヶ月/---ヶ月 |
仲介/FR | ---ヶ月/---ヶ月 |
所在階/向き | 7階/西 |
間取/面積 | 2LDK+WIC+SIC/51.03m2 |
入居日 | --- |
情報更新日 | 2025年1月23日 |
エルフォルテ東日暮里 成約済み物件 (6388-703)
あなたの理想の暮らしを見つける。KATAROKU
賃料 | ---円 |
---|---|
共益費/管理費 | ---円 |
敷金/礼金 | ---ヶ月/---ヶ月 |
仲介/FR | ---ヶ月/---ヶ月 |
所在階/向き | 7階/西 |
間取/面積 | 2LDK+WIC+SIC/51.03m2 |
入居日 | --- |
情報更新日 | 2025年1月23日 |
物件概要
◀︎ 建物詳細を見る物件名 | エルフォルテ東日暮里 | ||
---|---|---|---|
所在地 | 東京都荒川区東日暮里3-3-14 | ||
最寄駅 | JR常磐線(上野~取手)「三河島駅」徒歩6分 都電荒川線「荒川区役所前駅」徒歩9分 東京メトロ日比谷線「三ノ輪駅」徒歩13分 JR山手線「日暮里駅」徒歩16分 JR京浜東北線「日暮里駅」徒歩16分 |
||
物件特徴 | デザイナーズ、分譲賃貸、ペット可 | ||
階数構造 | 地上7階 RC造 | ||
総戸数 | 56戸 | 築年月 | 2024年10月 |
賃料 | ---円 | 管理費 | ---円 |
敷金/礼金 | ---ヶ月/---ヶ月 | 仲介手数料 | ---ヶ月 |
フリーレント | ---ヶ月 | 更新料 | ---ヶ月 |
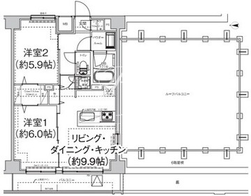
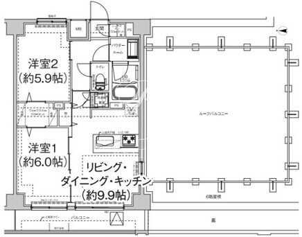
所在階/向き | 7階/西 | 間取り | 2LDK+WIC+SIC |
平米数 | 51.03m2 | 部屋詳細 | LDK9.9帖/洋室6帖/洋室5.9帖 |
契約形態 | 普通賃貸借契約 | 保証会社 | 利用必須 |
ペット飼育 |
可 敷1積増
|
SOHO・事務所 | 不可 |
入居日 | --- |
取引形態 | 媒介 |
問合番号 | 6388-703 | 情報更新日 | 2025年1月23日 |
キャンペーン情報 | キャンペーンの詳細やお見積り等お気軽にお問合せください。 | ||
掲載されている部屋情報以外の空き待ちも承ります。お問合せください。 |
部屋設備
建物詳細を見るアクセス
※建物周辺情報はGoogleMapを使用しており、物件表示位置が実際の位置と多少異なる場合がございます。
募集中のお部屋一覧
チェックボックスでまとめてのお問い合わせや検討中リストへ追加が出来ます。
掲載情報について
- ※随時更新を心がけておりますが、掲載している物件が万が一成約している場合もございますので予めご了承下さいませ。
- ※掲載情報と現況が異なる場合、現況優先となります。
- ※各種キャンペーンは予告なく変更、終了する場合がございます。
- ※駐車場・駐輪場・バイク置場の空き状況についてはお問い合わせ下さい。
- ※ペット飼育やSOHO利用・楽器使用の可否に関しては、建物の管理規約で可能になっていても、お部屋の所有者様によって禁止の場合もございますので御注意下さい。
- 各詳細はメールやお電話にてスタッフまでお気軽にご相談下さい。
おすすめ物件紹介

アトリオフラッツ日暮里
■2025年7月竣工■鶯谷駅徒歩6分■総戸数13戸■東京都荒川区東日暮里4-35-6■地上5階 RC造■フリーレント2ヶ月

リテラス西日暮里
■2024年12月竣工■西日暮里駅徒歩2分■総戸数49戸■東京都荒川区西日暮里5-18-10■地上14階 RC造■フリーレント1ヶ月

BPRレジデンス東日暮里
■2025年7月竣工■三ノ輪駅徒歩9分■総戸数36戸■東京都荒川区東日暮里2-27-11■地上10階 RC造

グランカーサ町屋2
■2025年6月竣工■町屋駅前徒歩3分■総戸数41戸■東京都荒川区町屋1-4-3■地上11階 RC造

アジールコート町屋
■2025年5月竣工■町屋駅徒歩3分■総戸数48戸■東京都荒川区町屋1-18-2■地上15階 RC造■フリーレント2ヶ月

グランパセオ西日暮里
■2025年3月竣工■西日暮里駅徒歩3分■総戸数20戸■東京都荒川区西日暮里5-6-1■地上10階 RC造■フリーレント2ヶ月

グランエール西日暮里
■2025年3月竣工■西日暮里駅徒歩5分■総戸数29戸■東京都荒川区西日暮里2-46-10■地上11階 RC造■フリーレント2ヶ月

ザ・ライオンズフォーシア町屋
■2025年2月竣工■新三河島駅徒歩5分■総戸数43戸■東京都荒川区荒川5-1-11■地上14階 RC造

ジオエント町屋
■2025年3月竣工■町屋駅徒歩3分■総戸数27戸■東京都荒川区町屋2-2-18■地上12階 RC造■フリーレント2ヶ月

グランカーサ町屋
■2025年1月竣工■町屋駅徒歩3分■総戸数58戸■東京都荒川区荒川4-39-9■地上15階 RC造

ドゥーエ日暮里3
■2024年12月竣工■日暮里駅徒歩10分■総戸数36戸■東京都荒川区東日暮里6-5-14■地上9階 RC造■フリーレント1ヶ月

ラグゼナ+OTO南千住
■2025年2月竣工■南千住駅徒歩6分■総戸数26戸■東京都荒川区南千住5-13-8■地上14階 RC造

ザ・パークハビオ北千住
■2025年7月竣工■北千住駅徒歩4分■総戸数147戸■東京都足立区千住3丁目32■地上14階RC造■仲介手数料無料

リーフシティ市川ザ・レジデンス
■2025年5月竣工■市川駅徒歩6分■総戸数235戸■市川市市川南2■地上9階 RC造■仲介手数料無料

ロイヤルパークス品川
■2025年1月竣工■品川駅徒歩11分■総戸数458戸■東京都港区港南3-5-21■地上28階 地下1階 RC造■フリーレント2.5ヶ月

コンフォリア芝浦MOKU
■2024年10月竣工■田町駅徒歩9分■総戸数64戸■東京都港区芝浦4-11-16■地上9階 RC造