ロイヤルパークス品川 成約済み物件 (6461-2602)
あなたの理想の暮らしを見つける。KATAROKU

賃料 | ---円 |
---|---|
共益費/管理費 | ---円 |
敷金/礼金 | ---ヶ月/---ヶ月 |
仲介/FR | ---ヶ月/---ヶ月 |
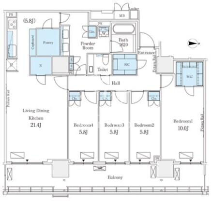
所在階/向き | 26階/東 |
間取/面積 | 4LDK+WIC+SIC/121.59m2 |
入居日 | --- |
情報更新日 | 2025年6月17日 |
ロイヤルパークス品川 成約済み物件 (6461-2602)
あなたの理想の暮らしを見つける。KATAROKU

賃料 | ---円 |
---|---|
共益費/管理費 | ---円 |
敷金/礼金 | ---ヶ月/---ヶ月 |
仲介/FR | ---ヶ月/---ヶ月 |
所在階/向き | 26階/東 |
間取/面積 | 4LDK+WIC+SIC/121.59m2 |
入居日 | --- |
情報更新日 | 2025年6月17日 |
物件概要
◀︎ 建物詳細を見る物件名 | ロイヤルパークス品川 | ||
---|---|---|---|
所在地 | 東京都港区港南3-5-21 | ||
最寄駅 | JR山手線「品川駅」徒歩11分 JR京浜東北線「品川駅」徒歩11分 京急本線「品川駅」徒歩11分 都営浅草線「泉岳寺駅」徒歩16分 JR山手線「田町駅」徒歩19分 |
||
物件特徴 | REIT系ブランドマンション、タワーマンション、デザイナーズ、ペット可 | ||
階数構造 | 地上28階 地下1階 RC造 | ||
総戸数 | 458戸 | 築年月 | 2025年1月 |
賃料 | ---円 | 管理費 | ---円 |
敷金/礼金 | ---ヶ月/---ヶ月 | 仲介手数料 | ---ヶ月 |
フリーレント | ---ヶ月 | 更新料 | ---ヶ月 |
所在階/向き | 26階/東 | 間取り | 4LDK+WIC+SIC |
平米数 | 121.59m2 | 部屋詳細 | LDK21.4帖/洋室10帖/洋室5.8帖/洋室5.8帖/洋室5.8帖 |
契約形態 | 普通賃貸借契約 | 保証会社 | 利用必須 |
ペット飼育 |
可 敷1積増
|
SOHO・事務所 | 不可 |
入居日 | --- |
取引形態 | 媒介 |
問合番号 | 6461-2602 | 情報更新日 | 2025年6月17日 |
キャンペーン情報 | キャンペーンの詳細やお見積り等お気軽にお問合せください。 | ||
掲載されている部屋情報以外の空き待ちも承ります。お問合せください。 |
部屋設備
建物詳細を見るアクセス
※建物周辺情報はGoogleMapを使用しており、物件表示位置が実際の位置と多少異なる場合がございます。
募集中のお部屋一覧
チェックボックスでまとめてのお問い合わせや検討中リストへ追加が出来ます。
掲載情報について
- ※随時更新を心がけておりますが、掲載している物件が万が一成約している場合もございますので予めご了承下さいませ。
- ※掲載情報と現況が異なる場合、現況優先となります。
- ※各種キャンペーンは予告なく変更、終了する場合がございます。
- ※駐車場・駐輪場・バイク置場の空き状況についてはお問い合わせ下さい。
- ※ペット飼育やSOHO利用・楽器使用の可否に関しては、建物の管理規約で可能になっていても、お部屋の所有者様によって禁止の場合もございますので御注意下さい。
- 各詳細はメールやお電話にてスタッフまでお気軽にご相談下さい。
おすすめ物件紹介

Le UnDeux南青山
■2025年9月竣工■外苑前駅徒歩5分■総戸数20戸■東京都港区南青山2-31-6■地上11階 RC造

リビオメゾン芝浦
■2025年6月竣工■芝浦ふ頭駅徒歩4分■総戸数102戸■東京都港区海岸3-21-35■地上14階 RC造

イプセ白金
■2025年7月竣工■白金台駅徒歩6分■総戸数14戸■東京都港区白金2-6-4■地上5階 RC造

ジオエント白金台
■2025年6月竣工■目黒駅徒歩6分■総戸数48戸■東京都港区白金台3-19-5■地上13階 RC造

ザ・ケンジントン・レジデンス芝浦
■2025年2月竣工■芝浦ふ頭駅徒歩8分■総戸数114戸■東京都港区海岸3-3-18■地上11階 RC造■フリーレント1ヶ月

ブリックレジデンス南青山
■2024年9月竣工■広尾駅徒歩13分■総戸数39戸■東京都港区南青山7-10-9
■地上14階 RC造

コンフォートサウス白金台
■2024年9月竣工■白金台駅徒歩6分■総戸数14戸■東京都港区白金台1-3-9■地上3階 RC造

グランパセオ西麻布2
■2024年6月■乃木坂駅徒歩10分■総戸数18戸■東京都港区西麻布2-7-4■地上10階 RC造■フリーレント2ヶ月

ザ・パークハウス北青山
■2024年4月竣工■外苑前駅徒歩6分■総戸数18戸■東京都港区北青山2-12-38■地上10階 RC造

オーパスレジデンス南青山
■2024年3月竣工■外苑前駅徒歩7分■総戸数51戸■東京都港区南青山4-1-10■地上11階 RC造■フリーレント2ヶ月

青朋レジデンス
■2024年4月竣工■表参道駅徒歩4分■総戸数24戸■東京都港区北青山3丁目5-6■地上13階 地下2階 S造

ザ・パークハビオSOHO南青山
■2023年9月竣工■表参道駅徒歩10分■総戸数51戸■東京都港区南青山7-4-23■地上12階 RC造■フリーレント1ヶ月

ザ・パークハビオ北千住
■2025年7月竣工■北千住駅徒歩4分■総戸数147戸■東京都足立区千住3丁目32■地上14階RC造■仲介手数料無料

リーフシティ市川ザ・レジデンス
■2025年5月竣工■市川駅徒歩6分■総戸数235戸■市川市市川南2■地上9階 RC造■仲介手数料無料

ロイヤルパークス品川
■2025年1月竣工■品川駅徒歩11分■総戸数458戸■東京都港区港南3-5-21■地上28階 地下1階 RC造■フリーレント2.5ヶ月

コンフォリア芝浦MOKU
■2024年10月竣工■田町駅徒歩9分■総戸数64戸■東京都港区芝浦4-11-16■地上9階 RC造