レジディア神田岩本町2 成約済み物件 (889-1203)
あなたの理想の暮らしを見つける。KATAROKU
賃料 | ---円 |
---|---|
共益費/管理費 | ---円 |
敷金/礼金 | ---ヶ月/---ヶ月 |
仲介/FR | ---ヶ月/---ヶ月 |
所在階/向き | 12階/南 |
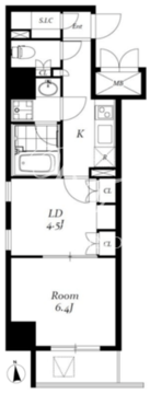
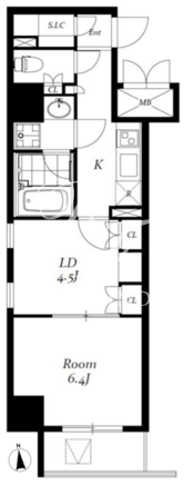
間取/面積 | 2K+SIC/37.26m2 |
入居日 | --- |
情報更新日 | 2021年1月31日 |
レジディア神田岩本町2 成約済み物件 (889-1203)
あなたの理想の暮らしを見つける。KATAROKU
賃料 | ---円 |
---|---|
共益費/管理費 | ---円 |
敷金/礼金 | ---ヶ月/---ヶ月 |
仲介/FR | ---ヶ月/---ヶ月 |
所在階/向き | 12階/南 |
間取/面積 | 2K+SIC/37.26m2 |
入居日 | --- |
情報更新日 | 2021年1月31日 |
物件概要
◀︎ 建物詳細を見る物件名 | レジディア神田岩本町2 | ||
---|---|---|---|
所在地 | 東京都千代田区岩本町2-12-6 | ||
最寄駅 | 都営新宿線「岩本町駅」徒歩3分 東京メトロ日比谷線「秋葉原駅」徒歩4分 JR山手線「秋葉原駅」徒歩4分 JR中央・総武線「秋葉原駅」徒歩4分 JR山手線「神田駅」徒歩7分 |
||
物件特徴 | REIT系ブランドマンション、デザイナーズ、ペット可 | ||
階数構造 | 地上13階 地下1階 RC造 | ||
総戸数 | 48戸 | 築年月 | 2007年4月 |
賃料 | ---円 | 管理費 | ---円 |
敷金/礼金 | ---ヶ月/---ヶ月 | 仲介手数料 | ---ヶ月 |
フリーレント | ---ヶ月 | 更新料 | ---ヶ月 |
所在階/向き | 12階/南 | 間取り | 2K+SIC |
平米数 | 37.26m2 | 部屋詳細 | 洋室6.4帖/洋室4.5帖/K2帖 |
契約形態 | 普通賃貸借契約 | 保証会社 | 利用必須 |
ペット飼育 |
可 敷1積増
|
SOHO・事務所 | 不可 |
入居日 | --- |
取引形態 | 媒介 |
問合番号 | 889-1203 | 情報更新日 | 2021年1月31日 |
キャンペーン情報 | キャンペーンの詳細やお見積り等お気軽にお問合せください。 | ||
掲載されている部屋情報以外の空き待ちも承ります。お問合せください。 |
部屋設備
建物詳細を見るアクセス
※建物周辺情報はGoogleMapを使用しており、物件表示位置が実際の位置と多少異なる場合がございます。
募集中のお部屋一覧
チェックボックスでまとめてのお問い合わせや検討中リストへ追加が出来ます。
掲載情報について
- ※随時更新を心がけておりますが、掲載している物件が万が一成約している場合もございますので予めご了承下さいませ。
- ※掲載情報と現況が異なる場合、現況優先となります。
- ※各種キャンペーンは予告なく変更、終了する場合がございます。
- ※駐車場・駐輪場・バイク置場の空き状況についてはお問い合わせ下さい。
- ※ペット飼育やSOHO利用・楽器使用の可否に関しては、建物の管理規約で可能になっていても、お部屋の所有者様によって禁止の場合もございますので御注意下さい。
- 各詳細はメールやお電話にてスタッフまでお気軽にご相談下さい。
おすすめ物件紹介

ザ・ライオンズフォーシア外神田
■2025年5月竣工■末広町駅徒歩3分■総戸数38戸■東京都千代田区外神田3-7-3■地上9階 RC造■フリーレント1ヶ月

ジオエント秋葉原
■2025年4月竣工■秋葉原駅徒歩3分■総戸数38戸■東京都千代田区神田佐久間河岸71-2■地上12階 RC造■フリーレント1ヶ月

ズーム神田
■2025年2月竣工■小伝馬町駅徒歩4分■総戸数56戸■東京都千代田区岩本町1-1-8■地上14階 RC造■フリーレント1ヶ月

クロスレジデンス神田神保町
■2024年4月竣工■神保町駅徒歩1分■総戸数44戸■東京都千代田区神田神保町1-5-8■地上13階 RC造

パークアクシス神保町
■2024年4月竣工■神保町駅徒歩4分■総戸数91戸■東京都千代田区神田神保町1-56-2■地上14階 RC造■フリーレント2ヶ月

パークアクシス神田レジデンス
■2024年4月竣工■淡路町駅徒歩4分■総戸数42戸■東京都千代田区神田司町2-19-1■地上12階 RC造

ベルファース神田神保町
■2024年1月竣工■神保町駅徒歩4分■総戸数68戸■東京都千代田区神田神保町1-46-5■地上13階 RC造■フリーレント2ヶ月

レ・ジェイドクロス千代田神保町
■2023年8月竣工■神保町駅徒歩4分■総戸数50戸■東京都千代田区西神田2-4-16■地上14階 地下1階 RC造

プルデンシャルタワーレジデンス
■2002年11月竣工■赤坂見附駅徒歩1分■総戸数125戸■東京都千代田区永田町2-13-14■地上38階 地下3階 SRC造

ルジュール神田須田町
■2023年3月竣工■神田駅徒歩3分■総戸数53戸■東京都千代田区神田須田町2-19-1■地上15階 RC造

クオリタス秋葉原
■2022年8月竣工■秋葉原駅徒歩5分■総戸数35戸■東京都千代田区神田佐久間町4-20■地上16階 RC造

パークリュクス神田
■2021年9月竣工■神田駅徒歩3分■総戸数55戸■東京都千代田区神田多町2-3-7■地上12階 RC造

ザ・パークハビオ北千住
■2025年7月竣工■北千住駅徒歩4分■総戸数147戸■東京都足立区千住3丁目32■地上14階RC造■仲介手数料無料

リーフシティ市川ザ・レジデンス
■2025年5月竣工■市川駅徒歩6分■総戸数235戸■市川市市川南2■地上9階 RC造■仲介手数料無料

ロイヤルパークス品川
■2025年1月竣工■品川駅徒歩11分■総戸数458戸■東京都港区港南3-5-21■地上28階 地下1階 RC造■フリーレント2.5ヶ月

コンフォリア芝浦MOKU
■2024年10月竣工■田町駅徒歩9分■総戸数64戸■東京都港区芝浦4-11-16■地上9階 RC造