ブライズ住吉DUE 成約済み物件 (3028-704)
あなたの理想の暮らしを見つける。KATAROKU
賃料 | ---円 |
---|---|
共益費/管理費 | ---円 |
敷金/礼金 | ---ヶ月/---ヶ月 |
仲介/FR | ---ヶ月/---ヶ月 |
所在階/向き | 7階/西 |
間取/面積 | 1K/25.64m2 |
入居日 | --- |
情報更新日 | 2024年12月11日 |
ブライズ住吉DUE 成約済み物件 (3028-704)
あなたの理想の暮らしを見つける。KATAROKU
賃料 | ---円 |
---|---|
共益費/管理費 | ---円 |
敷金/礼金 | ---ヶ月/---ヶ月 |
仲介/FR | ---ヶ月/---ヶ月 |
所在階/向き | 7階/西 |
間取/面積 | 1K/25.64m2 |
入居日 | --- |
情報更新日 | 2024年12月11日 |
物件概要
◀︎ 建物詳細を見る物件名 | ブライズ住吉DUE | ||
---|---|---|---|
所在地 | 東京都江東区千田21-20 | ||
最寄駅 | 東京メトロ半蔵門線「住吉駅」徒歩10分 都営新宿線「住吉駅」徒歩10分 東京メトロ東西線「東陽町駅」徒歩16分 東京メトロ半蔵門線「清澄白河駅」徒歩16分 都営新宿線「菊川駅」徒歩20分 |
||
物件特徴 | デザイナーズ、分譲賃貸、ペット可 | ||
階数構造 | 地上12階 RC造 | ||
総戸数 | 44戸 | 築年月 | 2021年9月 |
賃料 | ---円 | 管理費 | ---円 |
敷金/礼金 | ---ヶ月/---ヶ月 | 仲介手数料 | ---ヶ月 |
フリーレント | ---ヶ月 | 更新料 | ---ヶ月 |
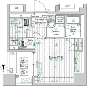
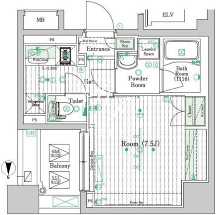
所在階/向き | 7階/西 | 間取り | 1K |
平米数 | 25.64m2 | 部屋詳細 | 洋室7.5帖/K2帖 |
契約形態 | 普通賃貸借契約 | 保証会社 | 利用必須 |
ペット飼育 |
可 共益費3,500円増
|
SOHO・事務所 | 不可 |
入居日 | --- |
取引形態 | 媒介 |
問合番号 | 3028-704 | 情報更新日 | 2024年12月11日 |
キャンペーン情報 | キャンペーンの詳細やお見積り等お気軽にお問合せください。 | ||
掲載されている部屋情報以外の空き待ちも承ります。お問合せください。 |
部屋設備
建物詳細を見るアクセス
※建物周辺情報はGoogleMapを使用しており、物件表示位置が実際の位置と多少異なる場合がございます。
募集中のお部屋一覧
チェックボックスでまとめてのお問い合わせや検討中リストへ追加が出来ます。
現在公開中の部屋情報がありません。
最新の情報はこちら
からお問い合わせください。
掲載情報について
- ※随時更新を心がけておりますが、掲載している物件が万が一成約している場合もございますので予めご了承下さいませ。
- ※掲載情報と現況が異なる場合、現況優先となります。
- ※各種キャンペーンは予告なく変更、終了する場合がございます。
- ※駐車場・駐輪場・バイク置場の空き状況についてはお問い合わせ下さい。
- ※ペット飼育やSOHO利用・楽器使用の可否に関しては、建物の管理規約で可能になっていても、お部屋の所有者様によって禁止の場合もございますので御注意下さい。
- 各詳細はメールやお電話にてスタッフまでお気軽にご相談下さい。
おすすめ物件紹介

ブランシエスタ木場
■2025年10月竣工■木場駅徒歩6分■総戸数129戸■東京都江東区木場6-15-5■地上11階 RC造

ティモーネグランデ押上イースト
■2025年7月竣工■押上駅徒歩13分■総戸数32戸■東京都江東区亀戸3-19-2■地上6階 RC造

ソラシアレジデンス亀戸
■2025年7月竣工■亀戸駅徒歩6分■総戸数34戸■東京都江東区亀戸6-43-4■地上5階 RC造

グランエール森下イースト
■2025年7月竣工■森下駅徒歩3分■総戸数34戸■東京都江東区森下2-31-11■地上8階 RC造

コンフォリア・リヴ森下MUTIO
■2025年8月竣工■森下駅徒歩5分■総戸数37戸■東京都江東区森下3-6-7■地上10階 RC造

ラヴィエール清澄ガーデンテラス
■2025年5月竣工■清澄白河駅徒歩6分■総戸数15戸■東京都江東区平野1-2-8■地上4階 RC造■フリーレント1ヶ月

ブライズ大島
■2025年8月■大島駅徒歩5分■総戸数32戸■東京都江東区大島6-3-12■地上9階 RC造

アジールコート門前仲町
■2025年5月竣工■門前仲町駅徒歩5分■総戸数26戸■東京都江東区深川1-5-12■地上10階 RC造■フリーレント1ヶ月

リヴシティ住吉
■2025年4月竣工■住吉駅徒歩9分■総戸数21戸■東京都江東区扇橋3-2-6■地上8階 RC造■フリーレント1ヶ月

クレストコート門前仲町
■2025年4月竣工■門前仲町駅徒歩7分■総戸数37戸■東京都江東区永代1-13-4■地上15階 RC造

コンフォリア・リヴ西大島サウス
■2025年3月竣工■西大島駅徒歩11分■戸数34戸■東京都江東区北砂3-2-6■地上8階 RC造■フリーレント1ヶ月

コンフォリア・リヴ豊洲キャナル
■2025年3月竣工■豊洲駅徒歩14分■総戸数125戸■東京都江東区枝川1-14-10■地上13階 RC造■フリーレント1ヶ月

ザ・パークハビオ北千住
■2025年7月竣工■北千住駅徒歩4分■総戸数147戸■東京都足立区千住3丁目32■地上14階RC造■仲介手数料無料

リーフシティ市川ザ・レジデンス
■2025年5月竣工■市川駅徒歩6分■総戸数235戸■市川市市川南2■地上9階 RC造■仲介手数料無料

ロイヤルパークス品川
■2025年1月竣工■品川駅徒歩11分■総戸数458戸■東京都港区港南3-5-21■地上28階 地下1階 RC造■フリーレント2.5ヶ月

コンフォリア芝浦MOKU
■2024年10月竣工■田町駅徒歩9分■総戸数64戸■東京都港区芝浦4-11-16■地上9階 RC造