クリアル三軒茶屋 成約済み物件 (3646-302)
あなたの理想の暮らしを見つける。KATAROKU
賃料 | ---円 |
---|---|
共益費/管理費 | ---円 |
敷金/礼金 | ---ヶ月/---ヶ月 |
仲介/FR | ---ヶ月/---ヶ月 |
所在階/向き | 3階/南 |
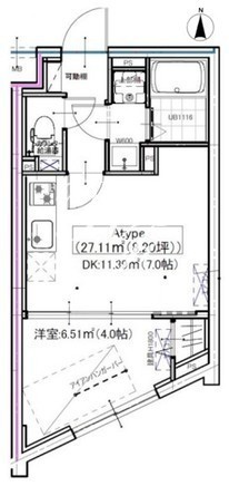
間取/面積 | 1DK/27.11m2 |
入居日 | --- |
情報更新日 | 2024年12月18日 |
クリアル三軒茶屋 成約済み物件 (3646-302)
あなたの理想の暮らしを見つける。KATAROKU
賃料 | ---円 |
---|---|
共益費/管理費 | ---円 |
敷金/礼金 | ---ヶ月/---ヶ月 |
仲介/FR | ---ヶ月/---ヶ月 |
所在階/向き | 3階/南 |
間取/面積 | 1DK/27.11m2 |
入居日 | --- |
情報更新日 | 2024年12月18日 |
物件概要
◀︎ 建物詳細を見る物件名 | クリアル三軒茶屋 | ||
---|---|---|---|
所在地 | 東京都世田谷区代沢4-8-2 | ||
最寄駅 | 東急世田谷線「西太子堂駅」徒歩9分 東急世田谷線「若林駅」徒歩11分 東急田園都市線「三軒茶屋駅」徒歩12分 東急世田谷線「三軒茶屋駅」徒歩12分 小田急線「世田谷代田駅」徒歩17分 |
||
物件特徴 | REIT系ブランドマンション、デザイナーズ | ||
階数構造 | 地上5階 RC造 | ||
総戸数 | 16戸 | 築年月 | 2021年2月 |
賃料 | ---円 | 管理費 | ---円 |
敷金/礼金 | ---ヶ月/---ヶ月 | 仲介手数料 | ---ヶ月 |
フリーレント | ---ヶ月 | 更新料 | ---ヶ月 |
所在階/向き | 3階/南 | 間取り | 1DK |
平米数 | 27.11m2 | 部屋詳細 | DK7帖/洋室4帖 |
契約形態 | 普通賃貸借契約 | 保証会社 | 利用必須 |
ペット飼育 | 不可 | SOHO・事務所 | 不可 |
入居日 | --- |
取引形態 | 媒介 |
問合番号 | 3646-302 | 情報更新日 | 2024年12月18日 |
キャンペーン情報 | キャンペーンの詳細やお見積り等お気軽にお問合せください。 | ||
掲載されている部屋情報以外の空き待ちも承ります。お問合せください。 |
部屋設備
建物詳細を見るアクセス
※建物周辺情報はGoogleMapを使用しており、物件表示位置が実際の位置と多少異なる場合がございます。
募集中のお部屋一覧
チェックボックスでまとめてのお問い合わせや検討中リストへ追加が出来ます。
現在公開中の部屋情報がありません。
最新の情報はこちら
からお問い合わせください。
掲載情報について
- ※随時更新を心がけておりますが、掲載している物件が万が一成約している場合もございますので予めご了承下さいませ。
- ※掲載情報と現況が異なる場合、現況優先となります。
- ※各種キャンペーンは予告なく変更、終了する場合がございます。
- ※駐車場・駐輪場・バイク置場の空き状況についてはお問い合わせ下さい。
- ※ペット飼育やSOHO利用・楽器使用の可否に関しては、建物の管理規約で可能になっていても、お部屋の所有者様によって禁止の場合もございますので御注意下さい。
- 各詳細はメールやお電話にてスタッフまでお気軽にご相談下さい。
おすすめ物件紹介

プレディアコート三軒茶屋
■2025年10月竣工■松陰神社前駅徒歩10分■総戸数30戸■東京都世田谷区上馬5-30-16■地上9階 RC造

アジールコート三宿テラス
■2025年9月竣工■三軒茶屋駅徒歩9分■総戸数58戸■東京都世田谷区三宿1-15-10■地上5階 地下1階 RC造

nido桜丘
■2025年8月竣工■千歳船橋駅徒歩6分■総戸数46戸■東京都世田谷区桜丘5-37-21■地上4階 RC造

アークマーク世田谷砧
■2025年6月竣工■千歳船橋駅徒歩9分■総戸数42戸■東京都世田谷区砧2-20-16■地上6階 RC造

グレーシアフィット三軒茶屋
■2025年8月竣工■駒沢大学駅徒歩8分■総戸数49戸■東京都世田谷区上馬2-22-4■地上14階 RC造

ルミーク三軒茶屋
■2025年7月竣工■駒沢大学駅徒歩9分■総戸数38戸■東京都世田谷区上馬1-15-4■地上14階 RC造

グランパセオ祐天寺
■2025年5月竣工■祐天寺駅徒歩10分■総戸数33戸■東京都世田谷区下馬1-22-14■地上4階 RC造■フリーレント2ヶ月

リビオメゾン東北沢
■2025年6月竣工■東北沢駅徒歩2分■総戸数41戸■東京都世田谷区北沢1-19-17■地上6階 地下1階 RC造

パークアクシス下北沢
■2025年6月竣工■下北沢駅徒歩4分■総戸数60戸■東京都世田谷区代沢2-29-11■地上7階 RC造

THE GRANDUO CHITOFUNA
■2025年3月竣工■千歳船橋駅徒歩9分■総戸数17戸■東京都世田谷区桜丘4-19-20■地上3階 RC造■フリーレント1ヶ月

グランパセオ下北沢
■2025年2月竣工■池ノ上駅徒歩2分■総戸数25戸■東京都世田谷区北沢1-33-20■地上4階 RC造■フリーレント2ヶ月

ライブフラット学芸大学
■20024年11月竣工■学芸大学駅徒歩8分■総戸数\15戸■東京都世田谷区下馬6-46-11■地上4階 RC造

ザ・パークハビオ北千住
■2025年7月竣工■北千住駅徒歩4分■総戸数147戸■東京都足立区千住3丁目32■地上14階RC造■仲介手数料無料

リーフシティ市川ザ・レジデンス
■2025年5月竣工■市川駅徒歩6分■総戸数235戸■市川市市川南2■地上9階 RC造■仲介手数料無料

ロイヤルパークス品川
■2025年1月竣工■品川駅徒歩11分■総戸数458戸■東京都港区港南3-5-21■地上28階 地下1階 RC造■フリーレント2.5ヶ月

コンフォリア芝浦MOKU
■2024年10月竣工■田町駅徒歩9分■総戸数64戸■東京都港区芝浦4-11-16■地上9階 RC造