サウンドおしあげ 成約済み物件 (5347-703)
あなたの理想の暮らしを見つける。KATAROKU
賃料 | ---円 |
---|---|
共益費/管理費 | ---円 |
敷金/礼金 | ---ヶ月/---ヶ月 |
仲介/FR | ---ヶ月/---ヶ月 |
所在階/向き | 7階/南西 |
間取/面積 | 1LDK/43.59m2 |
入居日 | --- |
情報更新日 | 2024年7月13日 |
サウンドおしあげ 成約済み物件 (5347-703)
あなたの理想の暮らしを見つける。KATAROKU
賃料 | ---円 |
---|---|
共益費/管理費 | ---円 |
敷金/礼金 | ---ヶ月/---ヶ月 |
仲介/FR | ---ヶ月/---ヶ月 |
所在階/向き | 7階/南西 |
間取/面積 | 1LDK/43.59m2 |
入居日 | --- |
情報更新日 | 2024年7月13日 |
物件概要
◀︎ 建物詳細を見る物件名 | サウンドおしあげ | ||
---|---|---|---|
所在地 | 東京都墨田区押上3-2-1 | ||
最寄駅 | 東京メトロ半蔵門線「押上(スカイツリー前)駅」徒歩5分 都営浅草線「押上(スカイツリー前)駅」徒歩5分 京成押上線「押上(スカイツリー前)駅」徒歩5分 東武伊勢崎線「押上(スカイツリー前)駅」徒歩5分 東武伊勢崎線「とうきょうスカイツリー駅」徒歩10分 |
||
物件特徴 | REIT系ブランドマンション、デザイナーズ | ||
階数構造 | 地上14階 RC造 | ||
総戸数 | 79戸 | 築年月 | 2006年2月 |
賃料 | ---円 | 管理費 | ---円 |
敷金/礼金 | ---ヶ月/---ヶ月 | 仲介手数料 | ---ヶ月 |
フリーレント | ---ヶ月 | 更新料 | ---ヶ月 |
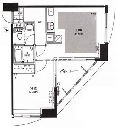
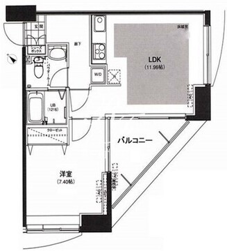
所在階/向き | 7階/南西 | 間取り | 1LDK |
平米数 | 43.59m2 | 部屋詳細 | LDK11.96帖/洋室7.4帖 |
契約形態 | 普通賃貸借契約 | 保証会社 | 利用必須 |
ペット飼育 | 不可 | SOHO・事務所 | 不可 |
入居日 | --- |
取引形態 | 媒介 |
問合番号 | 5347-703 | 情報更新日 | 2024年7月13日 |
キャンペーン情報 | キャンペーンの詳細やお見積り等お気軽にお問合せください。 | ||
掲載されている部屋情報以外の空き待ちも承ります。お問合せください。 |
部屋設備
建物詳細を見るアクセス
※建物周辺情報はGoogleMapを使用しており、物件表示位置が実際の位置と多少異なる場合がございます。
募集中のお部屋一覧
チェックボックスでまとめてのお問い合わせや検討中リストへ追加が出来ます。
現在公開中の部屋情報がありません。
最新の情報はこちら
からお問い合わせください。
掲載情報について
- ※随時更新を心がけておりますが、掲載している物件が万が一成約している場合もございますので予めご了承下さいませ。
- ※掲載情報と現況が異なる場合、現況優先となります。
- ※各種キャンペーンは予告なく変更、終了する場合がございます。
- ※駐車場・駐輪場・バイク置場の空き状況についてはお問い合わせ下さい。
- ※ペット飼育やSOHO利用・楽器使用の可否に関しては、建物の管理規約で可能になっていても、お部屋の所有者様によって禁止の場合もございますので御注意下さい。
- 各詳細はメールやお電話にてスタッフまでお気軽にご相談下さい。
おすすめ物件紹介

アルファコート曳舟2
■2025年9月竣工■曳舟駅徒歩10分■総戸数61戸■東京都墨田区向島5-12-8■地上8階 RC造■フリーレント1ヶ月

クレストコート本所吾妻橋ノース
■2025年9月竣工■本所吾妻橋駅徒歩2分■総戸数78戸■東京都墨田区吾妻橋2-7-10■地上11階 RC造

パレスシンシア江東橋
■2025年2月竣工■錦糸町駅徒歩6分■総戸数49戸■東京都墨田区江東橋4-13-11■地上14階 RC造

プレディアコート錦糸町スカイビュー
■2025年9月竣工■錦糸町駅徒歩9分■総戸数69戸■東京都墨田区太平1-12-4■地上14階 RC造

プラウドフラット錦糸町ウエスト
■2025年7月竣工■両国駅徒歩10分■総戸数81戸■東京都墨田区緑4-30-10■地上13階 RC造

ブリリアイスト墨田曳舟
■2025年7月竣工■曳舟駅徒歩4分■総戸数43戸■東京都墨田区東向島2-21-3■地上12階 RC造

グランパセオ押上2
■2025年5月竣工■押上駅徒歩7分■総戸数31戸■東京都墨田区向島3-8-8■地上7階 RC造■フリーレント2ヶ月

グランエール森下ウエスト
■2025年5月竣工■森下駅徒歩2分■総戸数32戸■東京都墨田区千歳3-4-2■地上9階 RC造■フリーレント1ヶ月

ラグゼナ平井ノース
■2025年9月竣工■東あずま駅徒歩11分■総戸数53戸■東京都墨田区立花6-21-2■地上5階 RC造■フリーレント4ヶ月

オープンブルーム東向島ウエスト
■2025年3月竣工■東向島駅徒歩2分■総戸数33戸■東京都墨田区東向島4-38-11■地上6階 RC造■フリーレント2ヶ月

グランパセオ両国4
■2025年2月竣工■両国駅徒歩10分■総戸数66戸■東京都墨田区石原2-26-16■地上7階 RC造■フリーレント2ヶ月

アスマチメゾン両国1
■2025年3月竣工■菊川駅徒歩9分■総戸数40戸■東京都墨田区緑3-2-6■地上9階 RC造

ザ・パークハビオ北千住
■2025年7月竣工■北千住駅徒歩4分■総戸数147戸■東京都足立区千住3丁目32■地上14階RC造■仲介手数料無料

リーフシティ市川ザ・レジデンス
■2025年5月竣工■市川駅徒歩6分■総戸数235戸■市川市市川南2■地上9階 RC造■仲介手数料無料

ロイヤルパークス品川
■2025年1月竣工■品川駅徒歩11分■総戸数458戸■東京都港区港南3-5-21■地上28階 地下1階 RC造■フリーレント2.5ヶ月

コンフォリア芝浦MOKU
■2024年10月竣工■田町駅徒歩9分■総戸数64戸■東京都港区芝浦4-11-16■地上9階 RC造